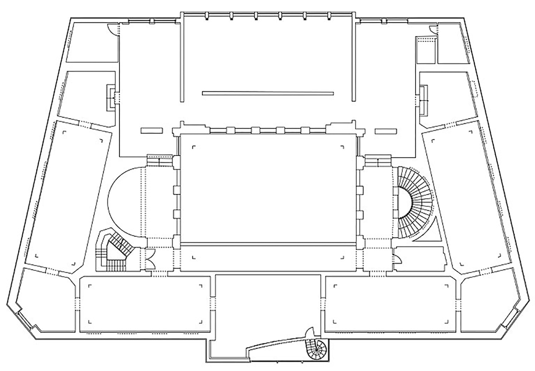
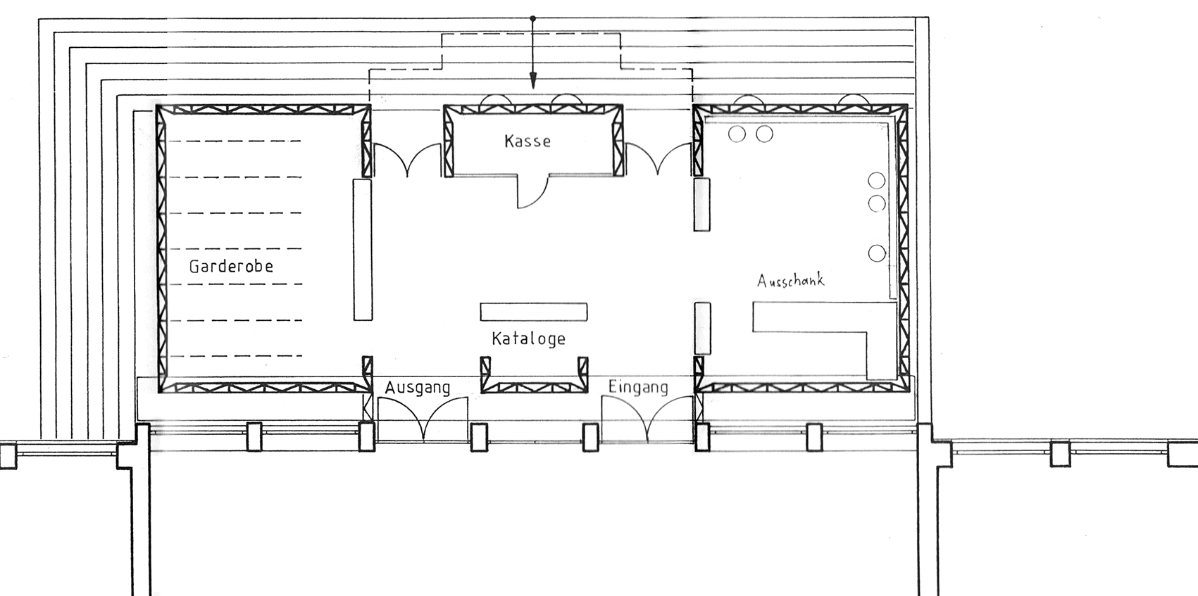
Palazzo Barzizza, Venedig
Der Ausstellungsgestaltung für den Berliner Künstler lag an einer Symbiose der Werke mit dem Ort ihrer Präsentation. Karsten Klingbeil, ein Meister der Patinierung, schuf seine realistisch-expressiven Skulpturen in vielen Formaten.
















































































































































