Museum am Ostwall, Dortmund
Das in den 1950er Jahren aus Ruinen errichtete Museum am Ostwall hat seinen Haupteingang an der namensgebenden Straße. Hinter dem Museum ist ein kleiner Park mit Skulpturen angelegt.
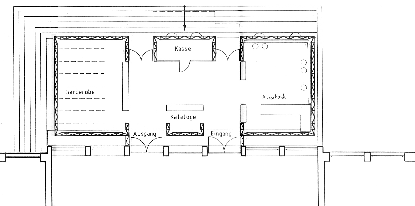
Für große Ausstellungen wie »Jenseits der Großen Mauer – der Erste Kaiser von China und seine Terrakotta-Armee« ist das vorhandene Foyer und die Garderobe an der Ostwallseite zu klein und konservatorisch problematisch, sodass für solche Ereignisse eine temporäre Kasse und Garderobe auf der Terrasse eingerichtet werden muss. Der einstöckige Bau aus System 180® passt sich wegen seiner modularen Bauform gut an die Gegebenheiten des Hauses an und bildet zusätzlich eine Klima- und Sicherheitszwischenzone. Auf dem ersten Bild ist hinten die Garderobe und links der Kassenbereich zu erkennen. Der Bau war auch ein Werbeträger nach außen. Aus Anlass der Ausstellung sanierten und modernisierten wir auch das Museum am Ostwall.
Fotos
Werner Zellien












