Dortmund-Mitte
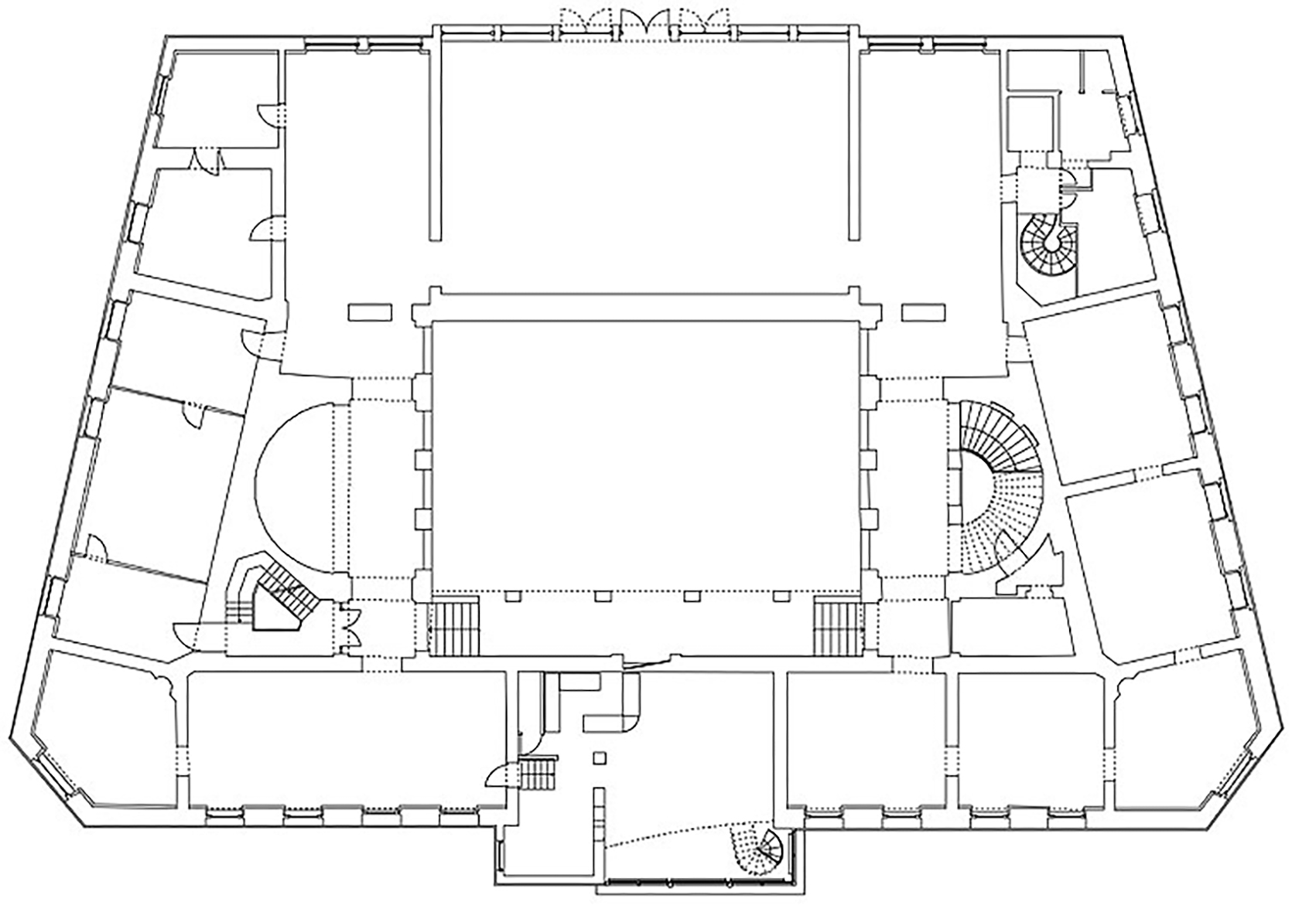
Für die Ausstellung Jenseits der Großen Mauer – der erste Kaiser von China und seine Terrakotta-Armee sollte das städtische Museum für Moderne Kunst neu gestrichen werden. Bei genauerer Untersuchung stellte sich heraus, dass Beleuchtung und Fußböden nicht mehr einfach zu renovieren waren.
Kurzfristig fiel die Entscheidung, das Haus für 3 Millionen DM zu sanieren. Im Obergeschoss erhielt der Lichthof neue Durchbrüche. Eine Wand dahinter schließt den Umgang und gibt dem Gartensaal eine bessere Proportion. Die Oberlichter wurden freigelegt und neu verglast. Das Dach erhielt eine adäquate Wärmedämmung. Im Abgang zu den Herrentoiletten passten wir durch Verdichtung den Aufenthaltsraum für das Personal ein. In der Damentoilette bauten wir ohne Platzverlust durch geschickte Raumausnutzung einen Fahrstuhlschacht ein. Das ganze Haus erhielt das wegweisende Temperiersystem. Spuren aus den entscheidenden Phasen des Bauwerks deckten wir auf, legten sie offen und setzten sie zur Unterstützung der einmaligen Aura des Hauses ein.
Zudem entwickelten wir für das Museum am Ostwall die Lichtinsel. Das indirekte Licht und die Wandfluter ließen wir mit Kompaktleuchtstofflampen ausstatten, einem damals üblichen, sparsamen Leuchtmittel.
Zusammenfassung Museum am Ostwall 1990
Bauherrin im Auftrag der Stadt Dortmund
Rheinisch-Westfälische Auslandsgesellschaft e.V., Dortmund
Günther Löb
Beratung
Wolfgang E. Weick, Leitender Städtischer Museumsdirkektor,
Dr. Ingo Bartsch, Direktor des Museums am Ostwall
Architektur und Bauleitung
Jürg Steiner mit Hasso von Elm, Dieter Guschlbauer,
Joachim B. Stanitzek
Ausführung
Rundholz, Dortmund (Bauhauptgewerbe)
Selux, Berlin (Lichtiniseln)
Fotografien
Die ersten 9 Fotos machte Manuel Kubitza (Köln) 1991
Lesenswerter Link
Text von Sonja Hnilica










































