Zucker-Museum – Sanierung und Wärmeschutz eines ehemaligen Wintergartens

Amrumer Strasse 32, Berlin-Wedding

1989 entwarfen wir im Zuge des Umbaus des Zucker-Museums einen Wintergarten aufgesetzt auf einer grossen Terrasse.

Veröffentlicht am
Kategorisiert als Architektur

Entwurf für ein solar definiertes Townhouse vor einer Brandmauer

Stierstrasse, Berlin-Friedenau

Mit vergleichsweise geringem Aufwand könnte vor der 30 m lange Brandwand ein Townhouse entstehen. 

Veröffentlicht am
Kategorisiert als Architektur

Haus jüdischer Kultur

Transformation der Alten Synagoge Essen

Ein neuer Typus des historischen Museums entstand aus der Gedenkstätte Alte Synagoge Essen. Sie besteht aus fünf Themen meist in Räumen die bisher museal nicht genutzt wurden: Quellen jüdischer Traditionen, Geschichte des Hauses, Jüdische Feste, Jüdischer Way of Life und Geschichte der Essener Gemeinde.

Gestaltung der Ausstellungsbereiche im Humboldt-Forum

Berliner Schloss (Wettbewerb)

 

Für die einzelnen Regionen und deren jeweilige Objektwelt wird je eine symbolische Raumgestalt vorgeschlagen. Dabei geht es um stilisierte Formen aus einer Glaskonstruktion – entweder durchsichtig, oder transluzent oder als undurchsichtiger Bild- und Textträger. Ein modulares System erlaubt Anpassungen und Modifi kationen. Die Raumgebilde sind eigentliche Präsentationsmöbel sowohl als Träger als auch als Gehäuse.

Ethnologischen Museums
Den regionalen Zugang vermitteln die symbolischen Bauwerke. Unaufdringlich aber verdeutlichen sie dem Publikum Ort und Zeit der jeweiligen Objektwelt. Das Glasmodul hilft dabei mit Stilisierung zu einem fragmentierten Zugang, der in den Köpfen des Publikums ein Ganzes formt. 

Während die regionalen Bildwelten die symbolischen Gehäuse formen, bilden Schaumagazine gleichsam Inseln, in doppelter Erscheinungsform: Sie sind im Inneren Schatzkammern, umschlossen von transparenten Depotschränken. Dank der tragenden Ausführung der Vitrinen und Depotschränke kann ein Geschoss darüber entstehen, das beim Hochblicken erkannt wird. Jeweils zwei Treppenanlagen und eine Hebebühne ermöglichen Arbeit und vertiefenden Besuch.

Museums für Asiatische Kunst
Grundgedanke der Ausstellung des »Museums für Asiatische Kunst« ist es die verschiedenen Sammlungsteile der Kunstsammlung miteinander zu integrieren. Die Ausstellungsgestaltung setzt dabei auf ein homogenes Erscheinungsbild von hochflexiblen, schlanken Standvitrinen, welches sich unterschiedlichsten Gegebenheiten und Sammlungsschwerpunkten anpassen kann und deren Konstruktion die asiatische Architektursprache aufgreift. Durch die Unität des Vitrinensystems werden die Kunstwerke in eleganter, würdevoller Weise präsentiert. Gleichwohl können mit den Modulen auch aufgelockerte Räume gebildet werden. 

Durch die Anordnung der Vitrinen entstehen Räume, Wege und Gärten fernöstlicher Welten, die der Besucher bei einem Besuch des Ausstellungsbereiches durchschreitet.

Präsentationsblätter

Veröffentlicht am
Kategorisiert als Architektur

Bauwelten System 180

Publikation

War’s ein Geschenk der System 180 GmbH an ihren Erfinder und Firmengründer oder unterzog sich Jürg Steiner der Mühe, neben dem Buch Himmel und Erde – Jürg Steiners Vertikalpanoramen, das Bazon Brock herausgab, selbst noch ein Geburtstagsgeschenk zu verfassen? Jedenfalls entstand eine Dokumentation im Wasmuth-Verlag – Manifest, so der Untertitel –, die am 15. April 2010 der Öffentlichkeit vorgestellt wurde.

Veröffentlicht am
Kategorisiert als Architektur

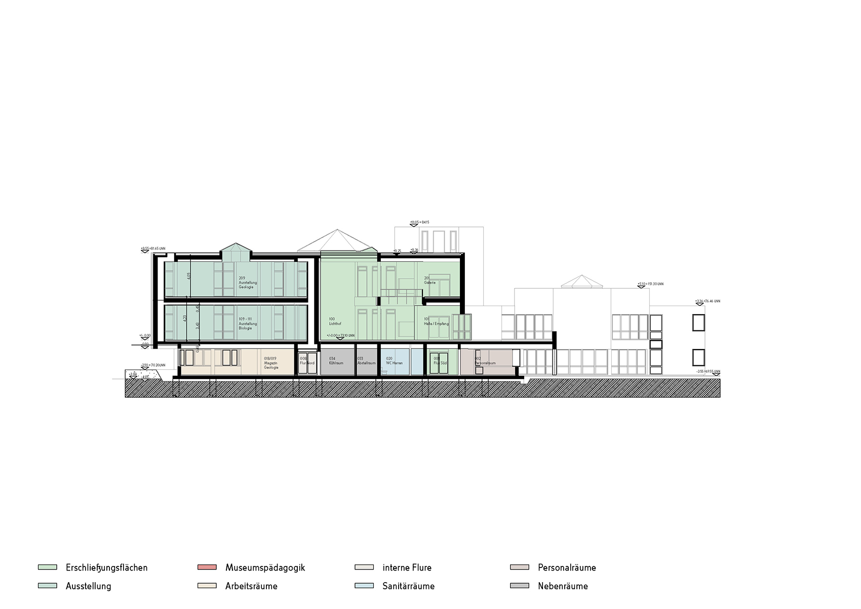
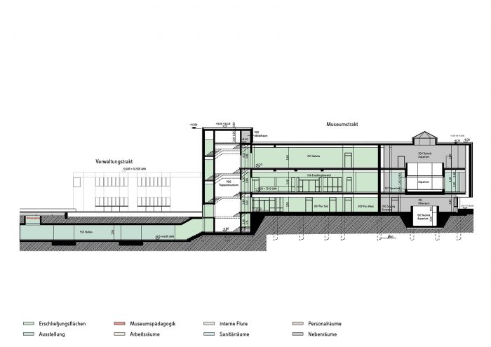
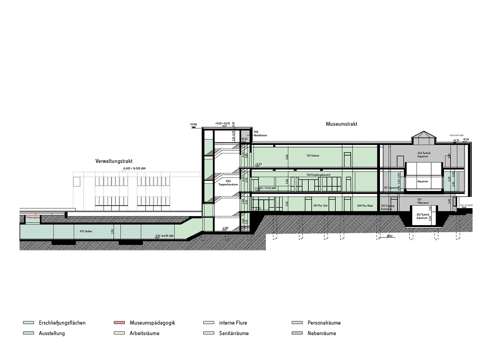
Bestandsanalyse und Konzeption

Museum für Naturkunde Dortmund

Im März 2009 wurden wir von Museumsleiterin Frau Dr. Dr. Möllmann im Namen der Kulturbetriebe der Stadt Dortmund beauftragt, eine Grundlagenermittlung zur Sanierung des 1980 eröffneten Gebäudes und der Ausstellung durchzuführen. 

Veröffentlicht am
Kategorisiert als Architektur

»Gefühle, wo man schwer beschreiben kann«

Fußball in Baden-Württemberg, Große Landesausstellung 2010 (Wettbewerb)

Bei dem geladenen Wettbewerb ging es darum, die emotionalen Höhepunkte der Fußballgeschichte Baden-Württembergs innerhalb dreier Ausstellungs-komponenten, Objektausstellung, Mitmachelemente und Forum, in den Räumen des Stuttgarter Kunstgebäudes in Szene zu setzen. Der große Kuppelsaal wird gleichsam zum Spielfeld mit aus Schattenrissen konzipierten Vitrinen, die Artefakte aus den 100 wichtigsten Spielen beherbergen. Ein 5m hohes panoramatisches Tableau mit den Fotografien aus über 3000 Fußballvereinen und interaktiven Stationen säumt das Geschehen. In der medialen ›Hall of Fame‹, werden Fußballweltmeister in lebensgroßen holographischen Projektionen gezeigt. Der Vierecksaal beherbergt das als Studio konzipierte Forum mit den radial dazu angeordneten Aktivzonen.

Auslober
Haus der Geschichte Baden-Württemberg

 

Wettbewerbsteam
Jürg Steiner
Oliver Wieshoff
Jochen Lingnau
Colin Steiner
Kolja Thomas
Cüneyt Yurdakul

 

Beratung
Prof. Dr. Dr. Franz-Josef Brüggemeier

 

Animierte Darstellung des Kuppelsaals

Veröffentlicht am
Kategorisiert als Architektur

Tutima

Glashütte, Sachsen (Wettbewerb)

Für die Firmenpräsentation im neu bezogenen Produktions- und Verwaltungsgebäude der traditionsreichen Uhrenmanufaktur Tutima in Glashütte galt es einen Vorschlag zu entwicken. Als zentraler Punkt innerhalb eines integrierten Konzeptes stößt ein als interaktive Fahrkunst entwickeltes Objekt mit Einzelvitrinen bis in den 10 Meter hohen Dachraum vor. Weiter wird das Publikum entlang der Wandflächen an einem selbstleuchtenden Zeitband im Uhrzeigersinn durch die Geschichte der Zeit und der Marke Tutima geführt. Am Ende dieses Zeitbandes gibt eine begehbare Glasscheibe den Blick in Teile der Produktionsstätte frei. Es kann hier eine interaktive Projektion aktiviert werden und die Vorgänge aus der Uhrenfertigung darstellt.

Präsentation Tutima

Auftraggeber:
Tutima Uhrenfabrik GmbH, Jörg Delecate

Entwurf:
Jürg Steiner, Oliver Wieshoff

Links:
www.tutima.com

Veröffentlicht am
Kategorisiert als Architektur

Open-Air-Ausstellung ›Friedliche Revolution 1989/1990‹ (Wettbewerb)

Alexanderplatz, Berlin-Mitte

 

Vorbemerkung
2009 stand Berlin im Zeichen des 20. Jahrestages des Mauerfalls und hatte diesen im Rahmen eines Themenjahres würdevoll zu begehen. Die Umsetzung des Gesamtprojekts des Berliner Themenjahrs 2009 ›20 Jahre Mauerfall – 20 Jahre Berlin im Wandel‹ hat die gemeinnützige landeseigene Kulturprojekte Berlin GmbH übernommen. Ein Höhepunkt und zentrale Veranstaltung des Themenjahres war die Open-Air-Ausstellung ›Friedliche Revolution 89/90‹ der Robert-Havemann-Gesellschaft. Als eindrucksvolle Inszenierung soll die Ausstellung auf dem Alexanderplatz zum Fokus und zentralen Anlaufpunkt des gesamten Themenjahres werden. Siehe auch den von uns gewonnenen Wettbewerb von 2007.

Veröffentlicht am
Kategorisiert als Architektur

Stadtbad Steglitz, Berlin

Sanierungs- und Umnutzungskonzept

Ende 2003 gelang es Gabriele Berger, die bereits das Bewegungsbad Marienfelde betrieb, das Grundstück unter der Maßgabe zu erwerben, das Bad in privatwirtschaftlicher Organisationsstruktur wieder in Betrieb zu nehmen. Wasserfitness in verschiedenen Ausprägungen sollte über räumliche Vorgaben hinaus mit neuer Methodik adaptiert werden. 

Veröffentlicht am
Kategorisiert als Architektur