Museum für Naturkunde Dortmund
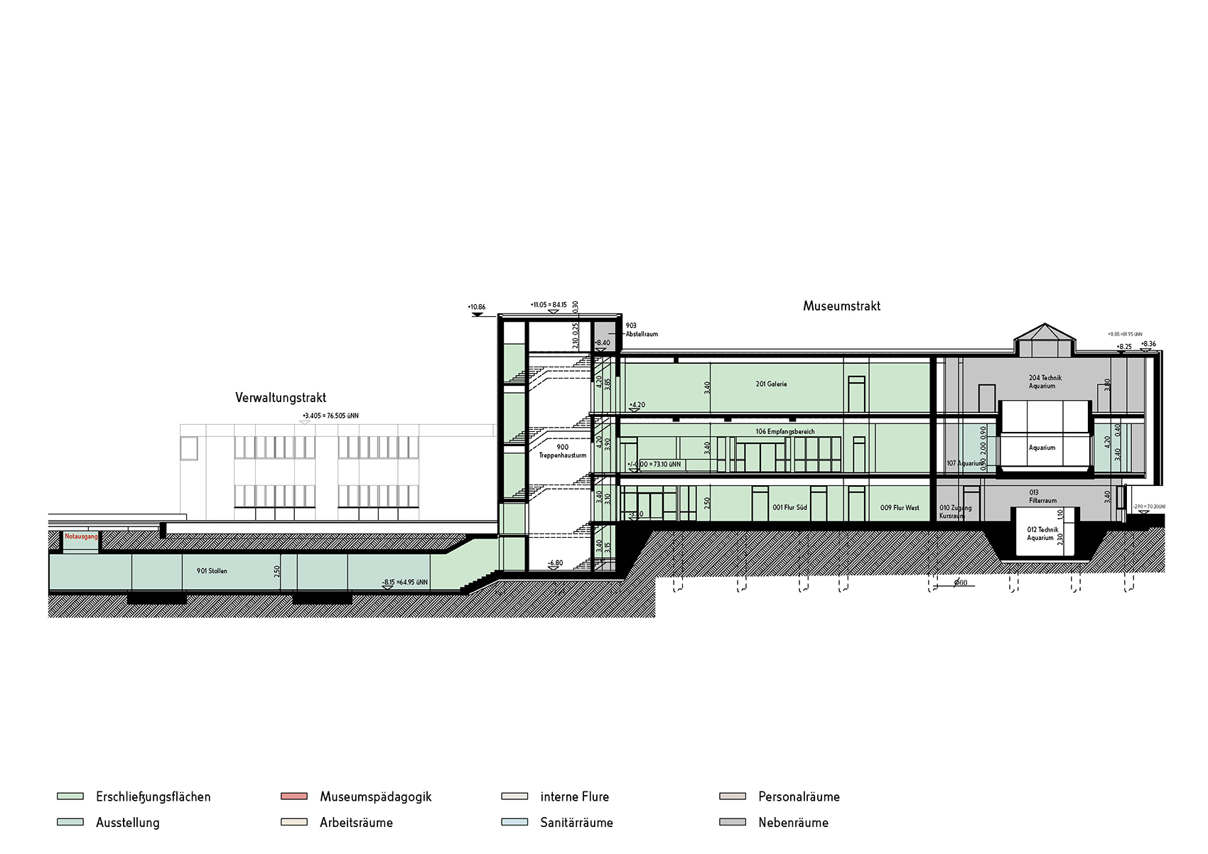
Im März 2009 wurden wir von Museumsleiterin Frau Dr. Dr. Möllmann im Namen der Kulturbetriebe der Stadt Dortmund beauftragt, eine Grundlagenermittlung zur Sanierung des 1980 eröffneten Gebäudes und der Ausstellung durchzuführen. Auf Grundlage einer detaillierten Bestandsaufnahme mit Benennung der derzeitigen Defizite und der Verbrauchskosten wurden ganzheitliche Handlungsstrategien unter Benennung der Kosten erarbeitet. Eine Überarbeitung der Raumnutzung verknüpften wir mit passiven und aktiven energetischen Optimierungsvorschlägen. Mit den nötigen Sanierungsmaßnahmen konnten wir gleichzeitig eine Aufwertung des Gesamterscheinungsbildes unter Betonung des kristallinen Charakters des Museums für Naturkunde erzeugen.
Nachdem wir bereits im März 2009 zur Durchführung der Grundlagenermittlung für die Sanierung des 1980 eröffneten Gebäudes beauftragt wurden, folgte die Einladung zur Teilnahme Gestalterwettbewerb für die neu geplante Dauerausstellung.
Grundlagenermittlung zur Gebäudesanierung, Erweiterung und Ausstellungskonzeption
Auftraggeber
Stadt Dortmund (Verwaltung der Museen)
Wolfgang Weick (Leitender Städtischer Museumsdirektor)
Museum für Naturkunde
Dr. Dr. Elke Möllmann (Leitende Direktorin)
Analyse, Konzeption und Entwurf
Jürg Steiner
Alexander Becker
Dokumentation
Victoria Rozhyna
Philipp Schröder
Cüneyt Yurdakul
Visualisierung
Alexander Becker
Kolja Thomas






















