Berliner Schloss (Wettbewerb)
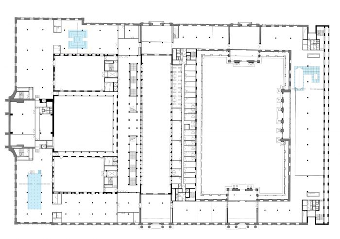
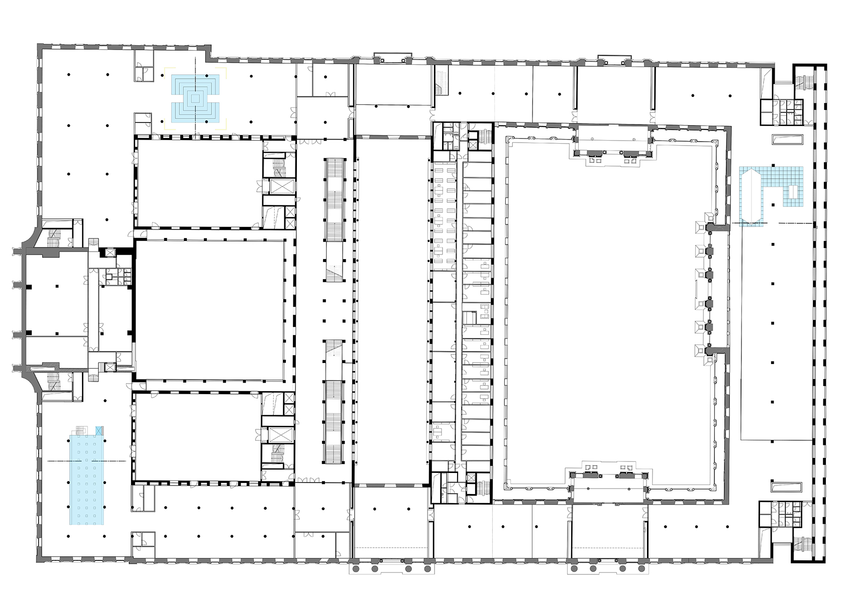
Für die einzelnen Regionen und deren jeweilige Objektwelt wird je eine symbolische Raumgestalt vorgeschlagen. Dabei geht es um stilisierte Formen aus einer Glaskonstruktion – entweder durchsichtig, oder transluzent oder als undurchsichtiger Bild- und Textträger. Ein modulares System erlaubt Anpassungen und Modifi kationen. Die Raumgebilde sind eigentliche Präsentationsmöbel sowohl als Träger als auch als Gehäuse.
Ethnologischen Museums
Den regionalen Zugang vermitteln die symbolischen Bauwerke. Unaufdringlich aber verdeutlichen sie dem Publikum Ort und Zeit der jeweiligen Objektwelt. Das Glasmodul hilft dabei mit Stilisierung zu einem fragmentierten Zugang, der in den Köpfen des Publikums ein Ganzes formt.
Während die regionalen Bildwelten die symbolischen Gehäuse formen, bilden Schaumagazine gleichsam Inseln, in doppelter Erscheinungsform: Sie sind im Inneren Schatzkammern, umschlossen von transparenten Depotschränken. Dank der tragenden Ausführung der Vitrinen und Depotschränke kann ein Geschoss darüber entstehen, das beim Hochblicken erkannt wird. Jeweils zwei Treppenanlagen und eine Hebebühne ermöglichen Arbeit und vertiefenden Besuch.
Museums für Asiatische Kunst
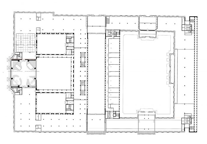
Grundgedanke der Ausstellung des »Museums für Asiatische Kunst« ist es die verschiedenen Sammlungsteile der Kunstsammlung miteinander zu integrieren. Die Ausstellungsgestaltung setzt dabei auf ein homogenes Erscheinungsbild von hochflexiblen, schlanken Standvitrinen, welches sich unterschiedlichsten Gegebenheiten und Sammlungsschwerpunkten anpassen kann und deren Konstruktion die asiatische Architektursprache aufgreift. Durch die Unität des Vitrinensystems werden die Kunstwerke in eleganter, würdevoller Weise präsentiert. Gleichwohl können mit den Modulen auch aufgelockerte Räume gebildet werden.
Durch die Anordnung der Vitrinen entstehen Räume, Wege und Gärten fernöstlicher Welten, die der Besucher bei einem Besuch des Ausstellungsbereiches durchschreitet.






































