Museum für Gegenwartskunst und Musikhalle (Wettbewerb)
Stadträumliche Dimension
Dem Entwurf ist daran gelegen, die Beziehung zwischen der Münsteraner Innenstadt und dem Schloss neu zu definieren ohne dabei die historisch gewachsenen Beziehungen zu negieren. Gleich zwei Regimentern stehen sich zwei Blöcke ohne eindeutige Ausrichtung gegenüber und formen durch ihre Stellung einen neuen Platz in der Schlossachse. Alte Bezeichnungen für die Örtlichkeit aufgreifend, entsteht hier der neu definierte Neuplatz. Eine Enfilade von Plätzen wandelt den Weg von der Stadt zum Schloss in ein dramaturgisches Konzept um: Vom Neuplatz, über den Schlossplatz zum Cour d’Honneur steigert sich die Abfolge in theatralischer Anordnung. Den axialen Sichtbezug verstärken Querachsen, deren mittlere, die Promenade, einen Gegenbezug in die Tiefe bildet. Der Neuplatz ist breiter als die Entfernung zwischen den beiden Kavaliershäusern, die dadurch die perspektivische Abfolge von der Stadt her kommend verstärken, der umgekehrte Weg verkürzt sich virtuell – die Stadt rückt so näher an das Schloss. Wegen der Beziehung von Längsachse zu Querachsen erscheint die Entfernung der Bäume entlang der Ost-West-Achse auf dem Hindenburgplatz gegeben. Der übrige Baumbestand ist integrativer Teil des Konzepts. Die denkmalpflegerischen Vorgaben werden so zur Selbstverständlichkeit.
Die beiden Baukörper sollen nicht Teil der Münster prägenden „Kunst im öffentlichen Raum“ darstellen, sondern durch die Minimierung der Formensprache bei gleichzeitigem szenischem Duktus die Entfaltung künstlerischen Schaffens sowohl im Außenraum als auch im Inneren fördern.
Die beiden weiteren Plätze – im Norden der verlängerte Kalkmarkt, im Süden der Abschluss des Hindenburgplatzes – proportionieren sich neu und gewinnen Abmessungen innerstädtischer Nebenplätze mit unterschiedlichen Nutzungsoptionen.
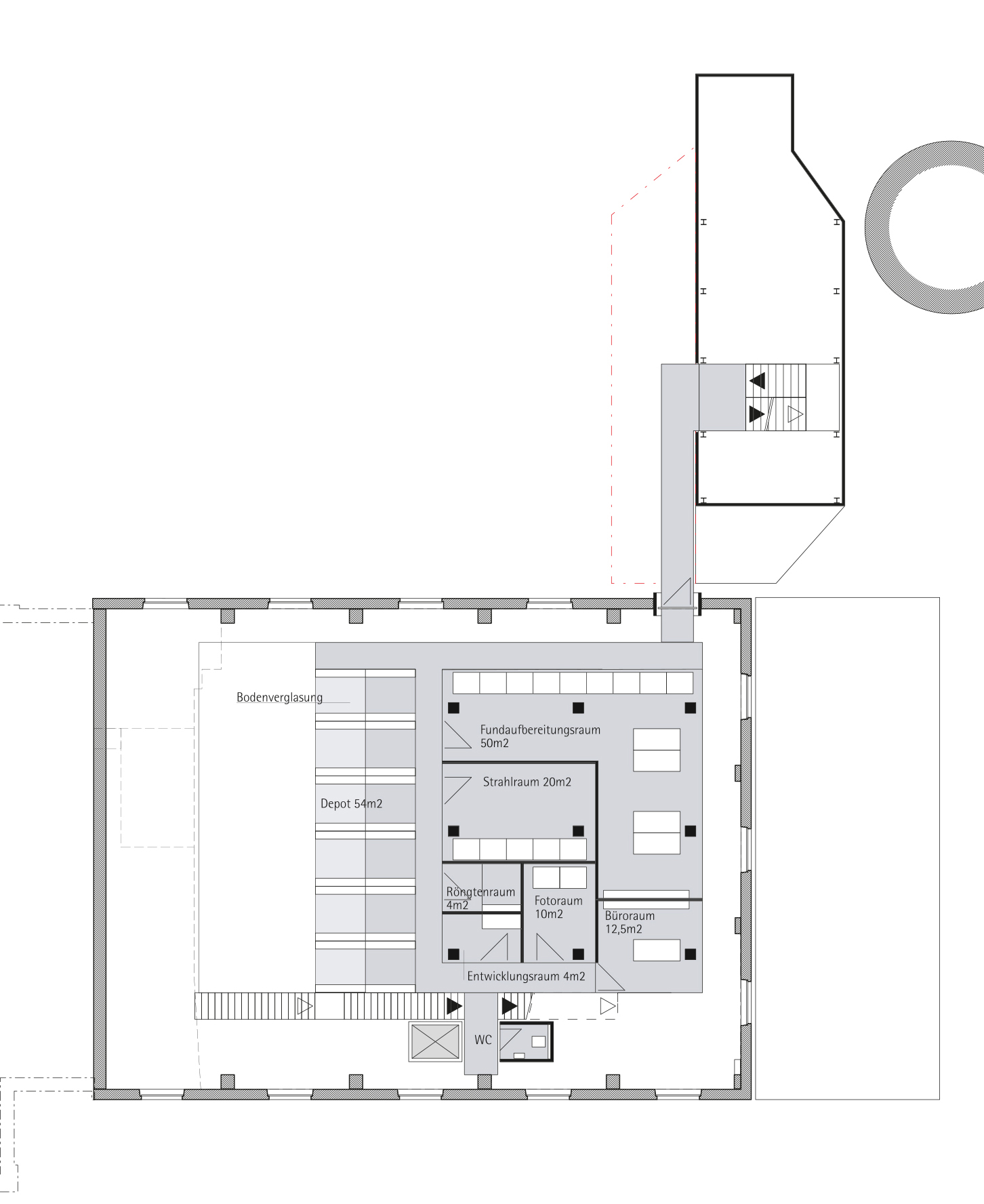
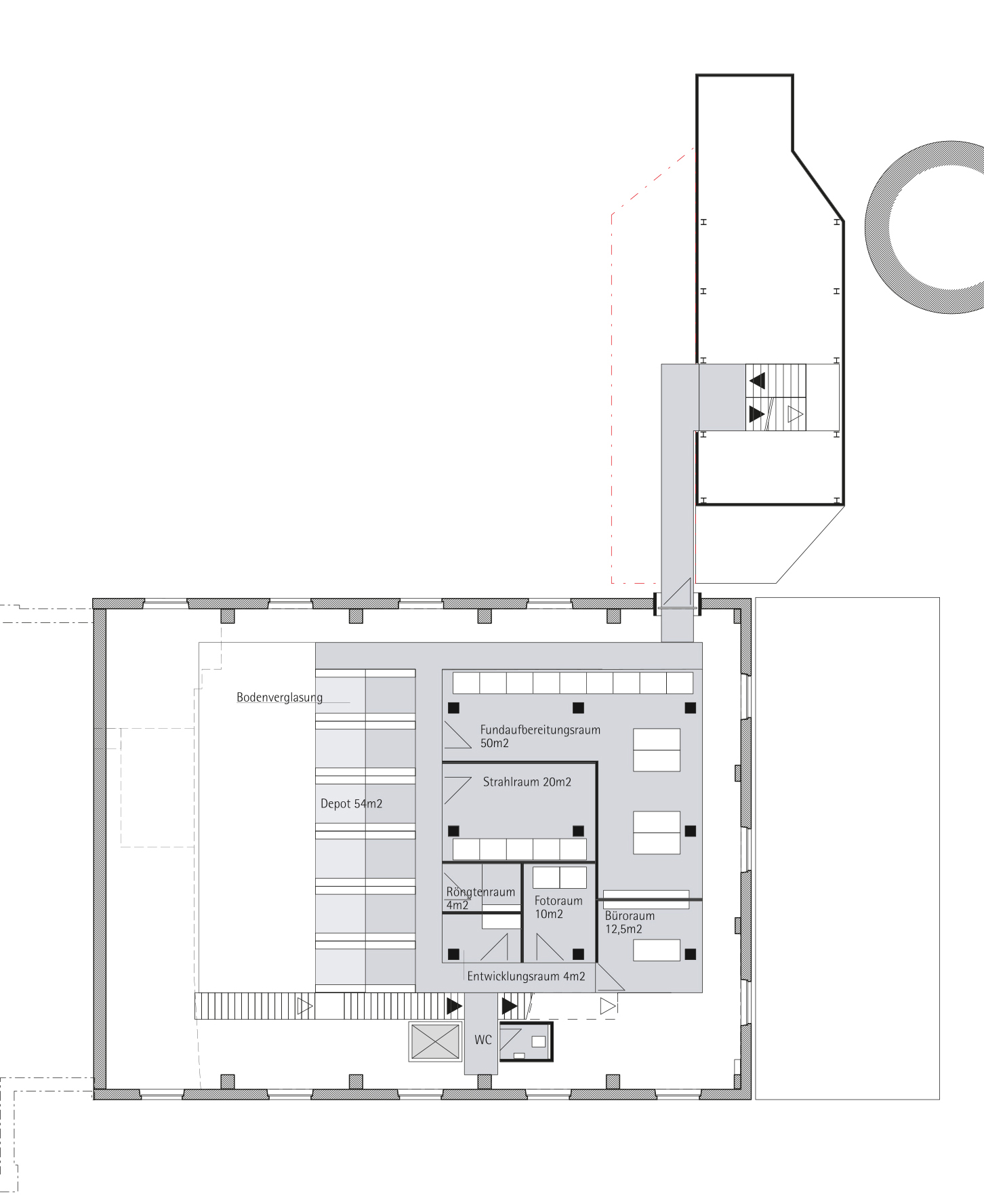
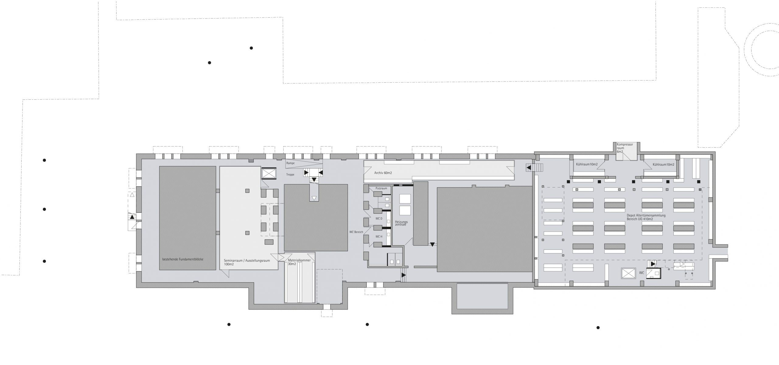
Forum
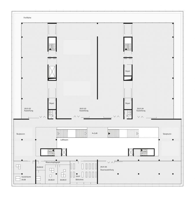
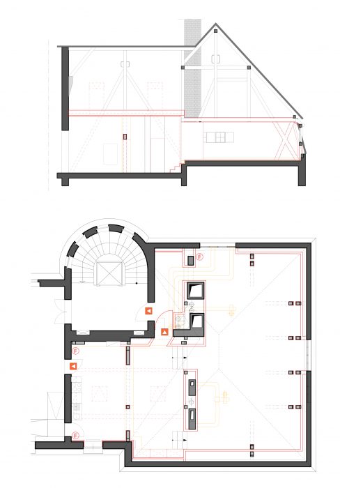
Damit ein neuer Platz entstehen kann, verlangen die beiden den Platzraum einfassenden Fassaden eine vergleichsweise hohe und möglichst breite Ausführung. Auf Grund des Raumprogramms empfiehlt sich die Konzeption von zwei annähernd quadratischen Baukörpern. Eine Annäherung an klassische Platzgestaltung legt eine ausgeprägte Sockelzone nahe, deren zeitgenössische Antwort wegen der Mehrfachnutzung und engen Beziehung der drei nun neu entstehenden Plätze, als Form einer Einschnürung der Baukörper auf Platzniveau lautet. So erhöht sich die nutzbare Fläche und es entsteht gleichzeitig ein Forum, also wörtlich ein Marktplatz. Die Überstände von 5.00 m rundherum bieten Schutz vor Wetter und vereinfachen so die Wege zwischen den Plätzen. Während des Send werden die Überstände Ort für kleinere Schaustellungen. Die Ausführung mit stützen- und vorsprunglosem Überstand soll die Verschmutzung und den unerwünschten Daueraufenthalt behindern. In den Zeiten zwischen dem Send dienen die verglasten Sockelzonen als Werbeträger durch Rückprojektionen oder ermöglichen den Einblick in dahinter liegende Funktionen. Das Anheben des Hauptgeschosses um 4,00 m versinnbildlicht nur nebenbei den Niveauunterschied zwischen Hochkultur und Jahrmarkt; hauptsächlich ermöglicht er eine sinnvolle Trennung und bietet dem Publikum in der Musikhalle und dem Museum einen reizvollen Überblick auf die 4,00 m niedriger liegende Platzgeschehen.
Der Neuplatz sollte mit Pflastersteinen belegt werden, durchaus als Anlehnung an den Cour d’Honneur (ganz nebenbei wäre dann die Nutzung als Skater-Bahn eingeschränkt). Der Entwurf beabsichtigt je eine Baumreihe vor den Hauptfassaden auf dem Neuplatz zu pflanzen um die Weichheit der Kanten im Freiraum dem inneren Fluss anzugleichen. Das wegen der Mehrfachnutzung sinnfällige Maß an bedingter Versiegelung wird durch die weitere Anordnung von Baumreihen in nord-südlicher Richtung hinter den beiden neuen Gebäuden kompensiert und die Plätze dadurch stadträumlich aufgewertet.
Mitarbeit
F. Eberhard Birkert
Martin Schoch
Prof. Jürg Steiner




































































































































































































































































