Amrumer Strasse 32, Berlin-Wedding
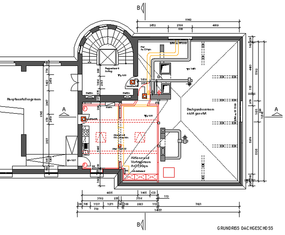
Im östlichen Dachgeschossbereich des Gebäudes besteht weiteres Ausbaupotentiel. Dem Wunsch der Museumsleitung gemäß, nach Schaffung eines Aktions- und Vortragsraumes zum pädagogischen Umgang mit Kindern in der Arbeit mit Zucker, wird durch die Planungsarbeiten Rechnung getragen. Die beiden jetzigen Lagerräume werden durch bauliche Veränderungen zusammengelegt und erhalten einen direkten Ausgang zum Treppenhaus.
In refer to the wish of the Museumsdirector to decorate and build a project- and speechroom in the east part of the roofstore, the office Steiner began the planning in 2002. The two former storerooms will be transformed into one room with a direct exit to the staircase.


















