Amrumer Strasse 32, Berlin-Wedding
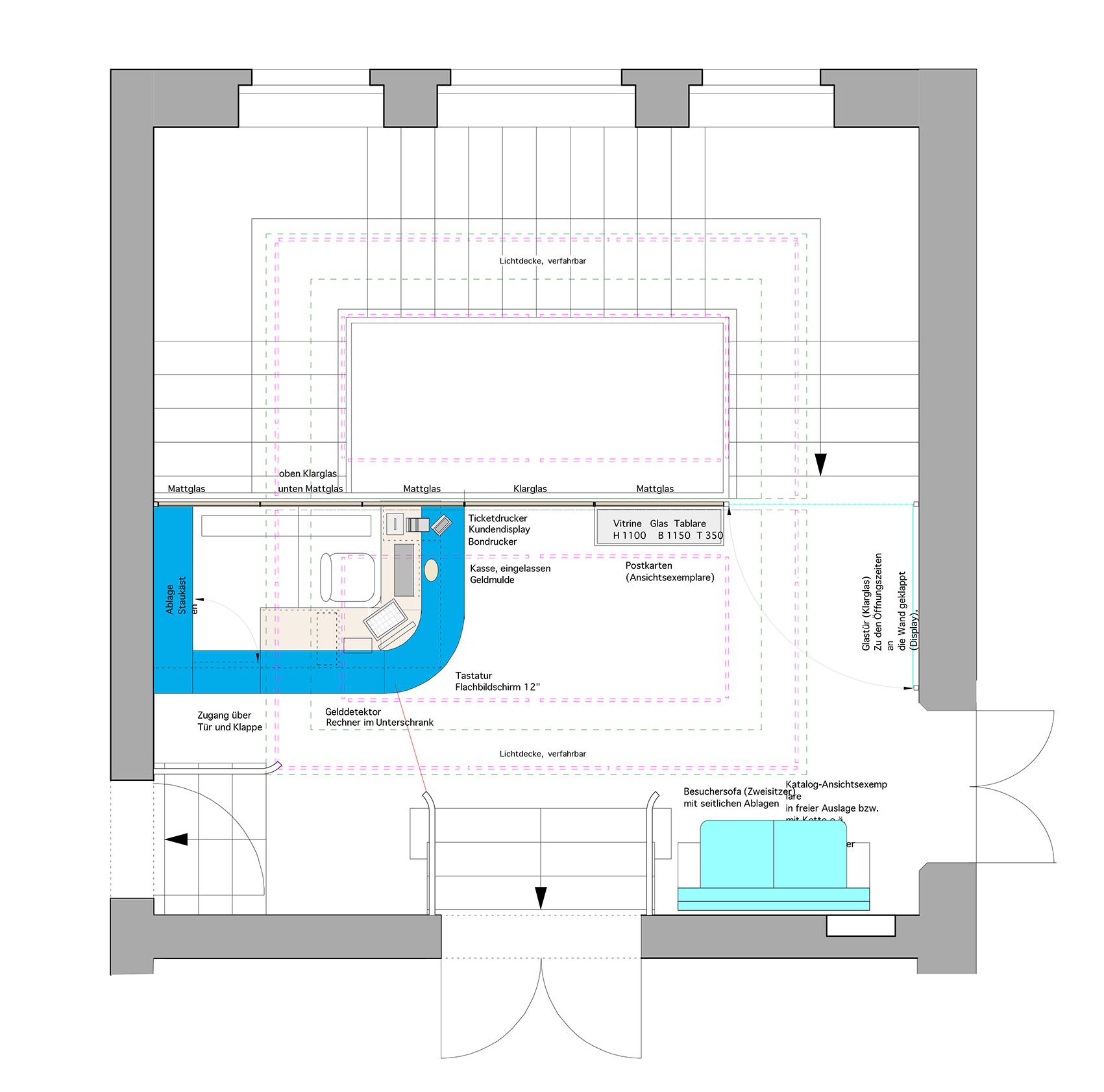
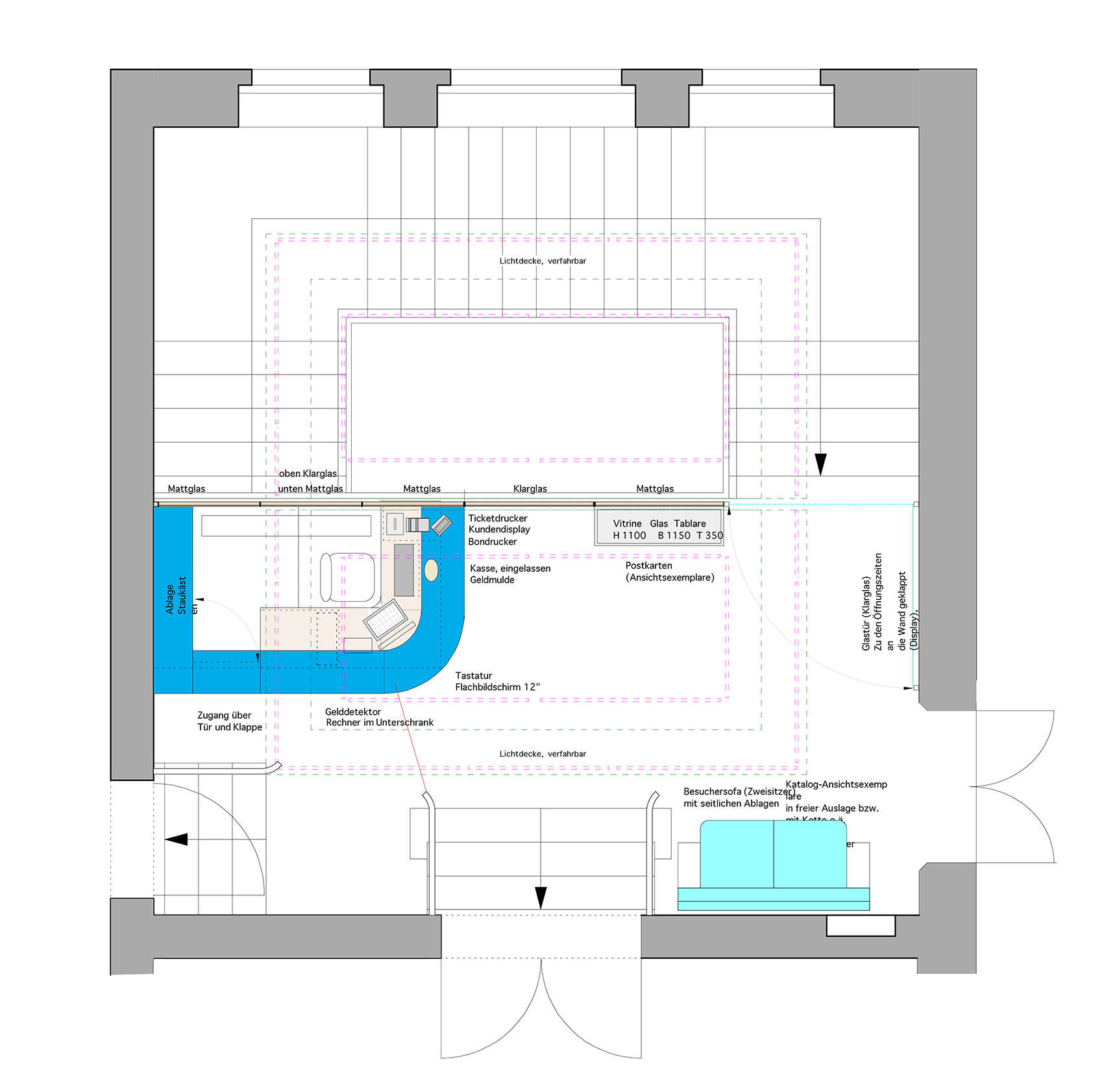
Die Eingangssituation im Dachgeschoss des Zucker-Museums wurde einer grundlegenden Neugesaltung unterworfen. Der Empfangsbereich wird klimatisch zum Treppenauge hin durch eine 2m hohe Glaswand abgetrennt. Ein neuer Kassentresen in einer Glas-Stahlrahmen-Konstruktion mit Edelstahlblechabdeckung empfängt den Besucher in neuem Gewand. Eine Licht-Akustikdecke „schwebt“ über diesem Bereich. Wartezeiten werden durch das neue Sitzmöbel angenehm überbrückt.
The entrance-situation in the roof of the Zuckermuseum Berlin had to be designed anew. The Entrance was climatic departed from the stairs by a 2 meters high wall made of glass. A new cass-counter made of a glass-steel construction was installed. A special light-acustic-ceiling hovers above this sceen.




























