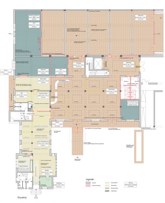
Ausstellungsräume in der Siegessäule

Berlin-Tiergarten

Im Sockel der Siegessäule, dem mitten im Tiergarten gelegenem stadtbekanntem Monument und beliebtem Aussichtsturm, befanden sich ungenutzte Räume, die in privater Initiative zu Ausstellungsräumen umgenutzt wurden. Insgesamt dreizehn Räume nehmen eine Ausstellung zur Denkmalgeschichte wichtiger europäischer Hauptstädte und natürlich zur Siegessäule auf. Denkmalschutz, Stadtplanung, feuerpolizeiliche Auflagen und die Vorschriften der Versammlungsstättenverordnung bilden den Hintergrund, der Engagement und unkonventionelle Lösungen erforderte.

Veröffentlicht am
Kategorisiert als Architektur

Renovierung und Ertüchtigung von zwei villenartigen Gebäuden – 1. Bauabschnitt

Ehemaliges Stahlhüttenwerk der Arbed in Esch-sur-Alzette, Luxemburg

Auf dem Gelände des ehemaligen Stahlhüttenwerkes in Esch-sur-Alzette, Luxemburg, wurde das Verwaltungsgebäude – Anfang des Jahrhunderts als Direktionsvilla errichtet – für eine repräsentative Büronutzung hergerichtet. Architektonische Eingriffe setzten wir fragmentarisch ein, wo sie die zukünftige Nutzung als Zentrale des Entwicklungsträgers beförderten.

Veröffentlicht am
Kategorisiert als Architektur

Dauerausstellung Deutsches Historisches Museum – Entwurfsplanung, 2002

Zeughaus, Unter den Linden, Berlin-Mitte

Die einzelnen Themen und Bereiche entsprechen dem Drehbuch des Deutschen Historischen Museums. Das Drehbuch – primär eine Sammlung und Beschreibung chronologisch und thematisch geordneter Ausstellungsstücke – ist mit dem Generaldirektor und den wissenschaftlichen Mitarbeitern und Mitarbeiterinnen des Museums durchgearbeitet und in räumliche Skizzen umgesetzt worden.

Unter den folgenden Links sind die Projektdokumentationen zu finden:

1 Entwurf und Planung
2 Beleuchtungskonzept
3 Mediales Konzept
4 Synchronisation
5 Rundgang

Veröffentlicht am
Kategorisiert als Architektur

Zucker-Museum – Erweiterung

Amrumer Strasse 32, Berlin-Wedding

Die umfangreichen Sammlungsbestände des Zucker-Museums lassen keinen Raum für zusätzliche Veranstaltungen, sodass ein noch ungenutzter Dachgeschossraum auf der Ausstellungsetage für Wechselausstellungen ausgebaut werden soll.

Veröffentlicht am
Kategorisiert als Architektur

Neugestaltung der Gedenkstätte Bergen-Belsen

Ideen- und Realisierungswettbewerb, in Zusammenarbeit mit bgmr Landschaftsarchitekten

Das Lagergelände, als historischer Ort von weltweiter Bedeutung, soll in seiner Dimensionierung wieder erfahrbar gestaltet werden. Denn sowohl die Begrenzung des ursprünglichen Areals als auch dessen Struktur und Gliederung als Ort nationalsozialistischer Gewaltherrschaft ist heute nicht mehr nachvollziehbar. Daher geht der Entwurf von der Identifizierbarkeit des Lagerkomplexes und seines räumlichen Gefüges aus.

Veröffentlicht am
Kategorisiert als Architektur

Kunstausstellungen inszenieren

Vortrag von Prof. Jürg Steiner im Rahmen der Tagungsreihe Szenografie

am 31. Januar 2002 hielt Prof. Jürg Steiner einen Vortrag über die Kunstausstellungen inszenieren und die Beziehung zwischen Kunst und Alltagsobjekten im musealen Kontext. Der Vortrag behandelte unter anderem:

  • Unterschiede zwischen der Präsentation von Kunstwerken in Museen und der Gestaltung von Messen oder kommerziellen Ausstellungen.

  • Den Einfluss von Museumsarchitektur und -gestaltung auf die Wahrnehmung von Kunstwerken.

  • Die Geschichte der Ausstellungsinszenierung, von der Grande Galerie im Louvre über die Dada-Bewegung bis hin zur documenta.

  • Spannungen zwischen Kunsthistorikern und Ausstellungsgestaltern und deren Einfluss auf das Besuchererlebnis.

  • Konkrete Beispiele von Herausforderungen in Museen wie das Jüdische Museum Berlin, das CAPC Musée d’Art Contemporain und das Van-Gogh-Museum, insbesondere hinsichtlich Licht, Raum und Anordnung der Werke.

  • Die Bedeutung der Harmonie zwischen Kunst und Architektur, besonders für moderne und zeitgenössische Kunst, einschließlich der Nutzung ehemaliger Industriegebäude.

Der Vortrag betonte, wie eine durchdachte Inszenierung und Raumplanung entscheidend dafür sind, dass Ausstellungen ihre volle Wirkung entfalten.

Den vollständigen Vortrag finden Sie hier als PDF

Veranstalter
DASA, Dortmund

Mitarbeit
Insa Lüdtke – Manuskriptbearbeitung
Véronique de Céa – Grafische Gestaltung
Christine Hoeltke – Bildredaktion

Veröffentlicht am
Kategorisiert als Architektur

Umnutzung von vier Schubleichtern als Ausstellungsräume

Medienhafen Düsseldorf

Die Anordnung der Schubleichter formt ein ›Wasseratrium‹, aus dem in der Mitte eine hohe Dalbe ragt. Darüber hinaus entstand so eine umlaufende, zusammenhängende Galerie. Diese ist der innere Teil der neuen Ebenen und Ort der Vogelschau-Einsicht in die Laderäume, die ungewöhnliche Ausstellungsräume mit vier geschlossenen rostigen Wänden bilden.

Veröffentlicht am
Kategorisiert als Architektur

Lebendige Industrie- und Unternehmenskultur

Vorgetragen im Museum „Altes Scherenlager“ des Rheinischen Industriemuseums in Solingen

Im Rahmen des Kolloquiums „Lebendige Industrie- und Unternehmenskultur“ der Regionale 2006 hielt Prof. Jürg Steiner am 23. Mai 2001 im Rheinischen Industriemuseum Solingen einen richtungsweisenden Vortrag über die kreative Inszenierung städtischer Räume im Zeichen des Strukturwandels.
Anhand Beispiele – von der Zeche Zollverein in Essen und den Gasometer Oberhausen – zeigt Steiner, wie Industriekultur, Licht, Kunst und urbane Interventionen neue Identitäten und Erlebnisräume schaffen können.

Der Fokus liegt auf der Idee von Urban and Landscape Public Relations: Wie lassen sich scheinbar verlorene Orte durch kreative Nutzung, kulturelle Zwischennutzung und temporäre Ereignisse wieder aktivieren und in das kollektive Stadtbewusstsein zurückführen?

Zusammenfassung „Lebendige Industrie- und Unternehmenskultur“

Veröffentlicht am
Kategorisiert als Architektur

Museologisches Konzept Sicherung Ziegelei Stackebrandt

1. Platz, Ziegeleipark Mildenberg (Wettbewerb)

Thema des erfolgreichen Wettbewerbsentwurfes von 1999 ist, das gesamte Gebäude zur Besichtigung mit schienengeführten Wagen freizugeben. Aufwändige Verkehrssicherungsmassnahmen werden so vermieden. Das Publikum nimmt entspannt und mit hoher Erlebnisqualität am Rundgang teil. Die Wagen werden über eine Rampe zum höchsten Punkt gezogen und bewegen sich mittels Schwerkraft durch das Gebäude. Vordringlich ist dabei die Sicherung des Bestandes, vor allem durch Instandsetzung der Dächer. Die Begleitung der Sicherungsmassnahmen im Hinblick auf eine zukünftige Nutzung und die Umsetzung des Wettbewerbskonzeptes ist Aufgabe im Jahr 2001.

Veröffentlicht am
Kategorisiert als Architektur

Preussen 1701 – Eine europäische Geschichte

Große Orangerie Schloss Charlottenburg, Berlin

Die Orangerie des Charlottenburger Schlosses gilt oft als schwer bespielbarer Raum. Dabei wird nicht zur Kenntnis genommen, dass die ungewöhnliche Raumtiefe geradezu einen Archetyp barocker Festarchitektur ermöglicht.