Amrumer Strasse 32, Berlin-Wedding
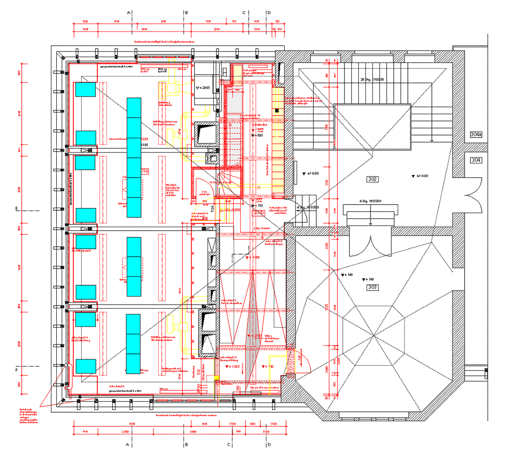
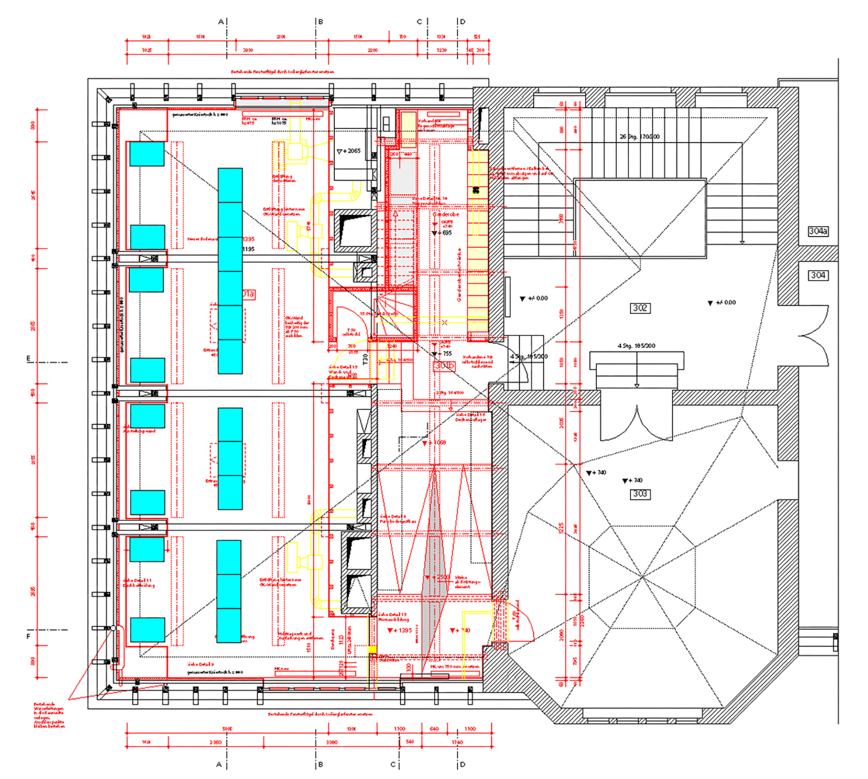
Die umfangreichen Sammlungsbestände des Zucker-Museums lassen keinen Raum für zusätzliche Veranstaltungen, sodass ein noch ungenutzter Dachgeschossraum auf der Ausstellungsetage für Wechselausstellungen ausgebaut werden soll. Die in diesem Raum noch vorhandenen Entlüfter des im gleichen Gebäude untergebrachten Zuckerinstitutes der Technischen Universität Berlin werden umgeordnet und die maximale Grundfläche genutzt. Veränderungen im Dachtragsystem und schräge Dachflächen geben dem Raum ein unverwechselbares Ambiente. Die Neuordnung des Garderobenbereiches, eine um eine Vitrine herumführende Behindertenrampe und ein platzsparendes Beleuchtungssystem komplettieren das ausgewogene Konzept.
The extensive collections of the sugar museum leave no room for extra events, so an unused attic room on the exhibition storey is now to be fitted out. This room still contains air extraction installations for the Sugar Institute of the Technical University of Berlin which is housed in the same building; these installations will be rearranged and the maximum possible floor space will be used. Changes in the roof support system and sloping roof surfaces will give the room a unique atmosphere. The rearrangement of the cloakroom area, a ramp for the disabled leading around a showcase and a lighting system which makes an economic use of space complete the balanced concept.
de.wikipedia.org/wiki/Zucker-Museum
























