Depots und Werkstätten der SMB

Berlin-Friedrichshagen (Wettbewerb)

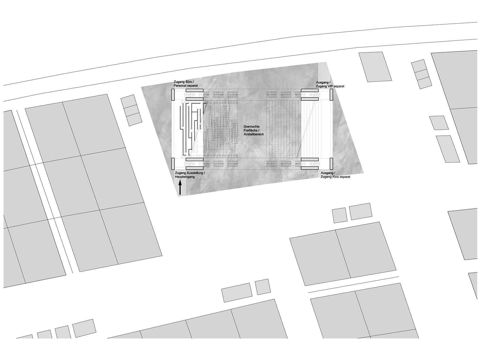
Logistisches Konzept
Der Entwurf basiert zuvorderst auf der Logistik eines Kunstdepotgebäudes, welches sich an Technologien des Bautypus Hochregallager anlehnt. Den Nutzern wird damit die Möglichkeit geboten, zukünftig wie in einem Hochregallager die Objekte dort zu platzieren, wo sie aus konservatorischen Gründen zusammenpassen. Das System eines Hochregallagers wird insofern modifiziert, als dass sich das Lager primär von einer Kopfseite her bedienen lässt. Dort können sowohl hängend verfahrbare Transportboxen an jede Stelle verbracht werden als auch Lastwagen und Gabelstapler fahren. Diese Logistikzone wird auf der anderen Seite von einem schmaleren Flügel begleitet, in dem vornehmlich Werkstätten und Büros liegen.

Veröffentlicht am
Kategorisiert als Architektur

Gedenkstätte Berliner Mauer

Erweiterung in der Bernauer Straße (Wettbewerb)

Freiraumgestaltung
Die immensen Flächen des Todesstreifens werden mit verdichtetem Splitt aus anthrazitfarbigem Hartgestein wieder sichtbar gemacht. So vermittelt sich die Ödnis der damaligen Anlage in abstrahierter Form. Da das Wettbewerbsgebiet sowohl im Norden, als auch im Süden von Parkanlagen gefasst wird, dient das Gelände des Gedenkortes nicht primär der Naherholung, es übernimmt vielmehr der Vermittlung des Lernens und Erinnerns.

Ausstellung
Der Blick bleibt frei von Aufbauten oder Bepflanzungen, deswegen liegen die thematischen Einheiten flach auf dem Boden. Diese bestehen vornehmlich aus 5 cm hohen Leuchtkästen, mal in Form einer Journalseite ein Thema beschreibend, mal in U-Form ein historisches Relikt einfassend. Einzig zur sinnlichen Visualisierung des Grenzverlaufs kommt ein in die Höhe ragendes Element zum Einsatz: im Abstand von 2 Metern aufgestellte Vermessungspfähle zeigen Verlauf und Höhe der beiden Mauern. Dem Publikum wird keine Wegeführung vorgeschrieben, es bewegt sich frei auf der gesamten Fläche und erkundet so individuell die Reste und die Geschichte der Mauer, die Deutschland von Deutschland trennte, geleitet vom Lichtschein der Tafeln. Die Typografie der Ausstellungstafeln ist dem Medium und der ungewöhnlichen Lage am Boden angepasst: Mehrer Schriftgrößen und –schnitte erlauben ein Lesen wie bei einer Zeitung: Titel, Einführung, Erklärung und Bildunterschrift sind gleich als solche zu erkennen, deutschsprachige und englische Teile sind deutlich getrennt und sofort zu erkennen, wobei nur der Text zweimal vorkommt, die Bilder und Dokumente als wichtigste Geschichtsvermittler aber je eine deutschsprachige und englische Bildunterschrift erhalten. Die Tafeln bestehen aus Hartglas in Sicherheitsglasausrüstung, 12 mm stark, mit weißem Überfang und praktisch wartungsfreien LED-Dioden hinterleuchtet. Die Vermessungspfähle werden ebenfalls mit LED-Dioden ausgestatten und leuchten am Abend zurückhaltend das Gelände aus, ohne zu blenden.

Folgende Bestandteile bilden die Ausstellung mit Hilfe der Bodentafeln:

  1. Thementafeln in Magazinform
  2. Hinweise auf Relikte im Gelände, meist in U-Form
  3. Gedenktafeln in quadratischer Form
  4. Exponatträger, bei denen die Ausstellungselemente als beschriftete Plinthen, je nach Notwendigkeit geformt, zur Anwendung kommen

Pavillon
Zur Bernauer Straße öffnet sich der Informationspavillon als große, 30 m breite Freitreppe, nur durchbrochen durch die 1,80 m breite Zugangsöffnung. Diese Freitreppe wird als natürliche Anlaufstelle für Besuchergruppen und Führungen erkannt – die Treppe schafft eine großzügige Aufenthaltsfläche für mehrere Gruppen mit Ausblick auf den Gedenkort, ermöglicht das Sammeln und Begrüßen von Gruppen vor einer Führung und lädt zu einem kontemplativen Rückblick nach dem Besuch des Gedenkorts ein. Die Ernsthaftigkeit der Thematik des Ortes widerspiegelnd, stellt sich der Baukörper bewusst archaisch und frei von Ornamentik dar. Die Fassade besteht dreiseitig aus vorgehängten Betonfertigteilen in den Abmessungen 1,80 m x 0,90 m mit zurückspringenden Fenstern und definiert so die eindeutige Ausrichtung des Gebäudes zur Bernauer Straße. Die horizontalen Fensterbänder in den Setzstufen der Außentreppe sorgen für die natürliche Belichtung der darunter liegenden Flächen, insbesondere des Foyers. In den Abendstunden werden die Stufen des Pavillons von innen illuminiert. Die Stufen sind 0,45 m hoch und 0,90 m tief und bieten sich als ideale Sitzflächen dar, die Lichtschlitze sind 0,225 m hoch. Zur guten Erreichbarkeit befinden sich an beiden Seiten Aufgänge mit 0,15 Stufenhöhe und 0,30 m Stufentiefe mit Brüstung und Handlauf. Bis auf diese Freitreppe ist das gesamte Gebäude barrierefrei zu begehen. Die Freitreppe kann unten an zwei Stellen auch mit Rollstühlen erreicht werden, so dass Gruppen mit Behinderten sich im unteren Bereich der Freitreppe sammeln.

Das Publikum betritt das Gebäude durch den Einschnitt in der Freitreppe und gelangt in ein kreisförmiges Foyer, an welchem sämtliche dienenden Funktionen direkt andocken. Die Bildungseinrichtungen liegen im hinteren Teil und können bei Bedarf durch einen aufgeständerten Anbau ergänzt werden; der zur Erschließung notwendige Flur ist im Obergeschoss bereits vorgesehen.

Die Anordnung der Gruppenräume und des Filmvorführraumes ermöglicht die Zusammenschaltung aller drei Räume. Bei geteilter Nutzung wird die Leinwand für Projektionen von der Decke herabgelassen.

Der anthrazitfarbene Linoleumboden korrespondiert mit dem dunklen Schotter der Freiflächen. Die Innenwände bestehen aus Gipskartonplatten und sind vollflächig gespachtelt. Die Ausführung als Holzständerkonstruktion in einem Raster von 0,90 m mit zwischen den Ständern liegender Wärmedämmung macht eine geringe Wandstärke von 0,225 m bei bestem Vollwärmeschutz möglich und erlaubt eine zügige Errichtung des Bauwerks.

Beleuchtung
Auf eigenständige Beleuchtungselemente wird verzichtet, da die Hinweise und Ausstellungselemente selbst leuchten. Die noch vorhandenen Bogenlampen des Mauerstreifens bleiben in ihrem jetzigen Status erhalten, die, welche momentan leuchten, bleiben auch als Relikt leuchtend, die, welche momentan kein Licht liefern, bleiben dunkel. Die sichere Durchquerung des Geländes wird durch den Lichteintrag der Leuchttafeln und insbesondere durch die leuchtenden Vermessungsstäbe gewährleistet.

Wirtschaftlichkeit
Das Konzept sieht mit Ausnahme des Pavillongrundstückes keine neuen Grünflächen vor, wodurch aufwendige Pflegearbeiten an eingespart werden. Die dunklen Schotterflächen heizen sich im Sommer auf und hindern somit wilden Bewuchs; mit mühseliger Befreiung von ungewünschten Wildpflanzen ist nicht zu rechnen. Die Flächen auf dem Grundstück des Informationspavillons sind bereits jetzt Park, die getroffenen Maßnahmen werden bezüglich der Wartung im Vergleich zu heute kostenneutral sein. Durch die Verwendung von selbst leuchtenden Ausstellungselementen können zusätzliche Leuchten eingespart werden.

Präsentationsblätter

 

Mitarbeit
Claus Klimek, Colin Steiner und Prof. Jürg Steiner

Veröffentlicht am
Kategorisiert als Architektur

Function Follows Form

Traktat über modulares Bauen

Selten kam es vor, dass eine von Jürg Steiner gegründete Firma ihrem Gründer einen Auftrag erteilte. 2007 hatte System 180 bereits viele Kuppeln gebaut, das Problem bestand in der nachhaltigen Nutzungszuweisung. Die geodätischen Konstruktionen sind wie für das System 180 gemacht, Nutzungen aber nur bedingt zu finden.

Ausstellung ›Friedliche Revolution‹ 1989

Alexanderplatz, Berlin-Mitte (Wettbewerb)

 

Für 2009 – 20 Jahre nach der friedlichen Revolution der Bevölkerung der DDR – plante die Robert-Havemann-Gesellschaft e.V. eine Ausstellung im Herzen Berlins. Die Beteiligten, die im öffentlichen Raum starke Erinnerungsbilder schufen, sollen im öffentlichen Raum die Gelegenheit haben, an ihr geschichtsträchtiges Wirken zu erinnern. Nichtbeteiligte werden gleichsam in die Ausstellung gesogen und haben je nach Zeit und Neigung die Möglichkeit ihre Erinnerungen aufzufrischen, zu vertiefen oder zu revidieren.

Veröffentlicht am
Kategorisiert als Ausstellung

Umnutzen ohne Renovieren

Beispiele und Thesen eines dem Auratischen verpflichteten Umgangs mit vorhandener Bausubstanz

Dank der freundlichen Gewährung eines Forschungsfreisemesters durch die Bergische Universität Wuppertal konnte Jürg Steiner ein Thema, das ihn schon beginnend mit dem Bau der Ausstellungshalle der ›Topographie des Terros‹ in Berlin-Kreuzberg, 1987, beschäftigt, kompilieren.

Veröffentlicht am
Kategorisiert als Forschung

Beleuchtungsoptimierung der Ausstellungsräume

Literaturhaus Berlin

Vom Leiter des Literaturhauses Berlin angesprochen, war es eine besondere Herausforderung, die eigene 1986 entwickelte Beleuchtung mit einem zentralen Kronleuchter für Kunstausstellungszwecke zu optimieren. Zwar lassen sich alle Halogenlampen des Kronleuchters einzeln ausrichten, doch eine Gleichmässigkeit der Lichtabbildung ist nur durch eine linienförmige Leuchte zu gewährleisten. Der Vorschlag besteht in feinen Leuchtstofflampenlinien, im Ausstellungsraum relativ hoch angebracht; für das etwas düstere Kaminzimmer ist die gleiche Leuchte auf der Oberkante der Holztäfelung aufgelegt um die oberen Wandbereiche aufzuhellen. Trotz der verbesserten Lichtwirkung vermieden wir Eingriffe in die vorhandenen Oberflächen.

Veröffentlicht am
Kategorisiert als Licht

Empfang und Shop

Deutsches Klingenmuseum, Solingen

Das Klingenmuseum befindet sich in einem ehemaligen Kloster – von J. P. Kleihues in den 1990er Jahre aufwändig umgebaut – im Solinger Stadtteil Gräfrath. Die Eingangssituation war weder besonders einladend noch praktisch: Die Kasse war weit zurückgesetzt, durch hohe hölzerne Einbauten entstand dahinter ein unkontrolierbarer Raum.

Veröffentlicht am
Kategorisiert als Architektur

Café Viktoria

am Großen Stern (Siegessäule), Berlin

Das Café Viktoria, im nordwestlichen Tunnelhaus A am Großen Stern, 1939 von Albert Speer im Zuge der Ost-West-Achse entworfen, betreibt jeden Sommer einen Biergarten auf der vorgelagerten Freifläche des Tunnelhauses, von wo aus auch der Zugang zum Café im Obergeschoss zu erreichen ist.

Veröffentlicht am
Kategorisiert als Architektur

Historische Ausstellung Krupp – Dauerausstellung

Villa Hügel (Kleines Haus), Essen

Auf Grund des 2004 gewonnenen Wettbewerbs zur Neugestaltung der ›Historischen Ausstellung Krupp‹ und der Ausstellung zur Alfried Krupp von Bohlen und Halbach-Stiftung wurde die Inneneinrichtung des einstigen Gästehauses vom herausragenden Unternehmer Alfred Krupp und seiner Nachkommen in einer der drei teilweise noch vorhandenen Fassungen rekonstruiert.

Veröffentlicht am
Kategorisiert als Ausstellung

Schweizer Pavillon

EXPO 2010 Shanghai. Better City, Better Life (Wettbewerb)

Lebensqualität, Umwelt und internationale Reputation

Ein klarer, einfacher und doch eleganter Bau mit hoher Erinnerungsqualität vermittelt ein beredtes Abbild des Schweizer Volkes in Einheit von Inhalt und Form. Im vorgeschlagenen Pavillon widerspiegelt sich das vorgegebene, anspruchsvolle Kino mit ansteigenden Platzreihen als Ausstellungszone 1. Beide Säle, Rücken an Rücken, bilden gleichsam eine Brücke, die sich auch nach Aussen manifestiert. Ein Geschoss über der ›Brücke‹ nimmt neben der Ausstellung 2 die notwendigen Funktionen auf.

Hohle Quader aus Stahlbeton formen sowohl Aussenansicht als auch Tragkonstruktion in einer scheinbar einfachen Stapelbauweise, die schnell zu montieren und demontieren ist. Innerhalb der Quader ist ausreichend Platz für die Führung von Medien und für notwendige Technik. Das Gebäude ist 20 m hoch, 70 m lang und 35 m breit, die Quader auf der Längsseite messen 7,5 m / 1,25 m / 2,5 m, die Quader an der Breitseite sind 5,00 m lang. In Längsrichtung werden vier Reihen Quader angeordnet, auf den inneren lagern die quer gespannten, 25 m langen Betonbalken des Sekundärtragwerks.

Veröffentlicht am
Kategorisiert als Architektur