EXPO 2010 Shanghai. Better City, Better Life (Wettbewerb)
Lebensqualität, Umwelt und internationale Reputation
Ein klarer, einfacher und doch eleganter Bau mit hoher Erinnerungsqualität vermittelt ein beredtes Abbild des Schweizer Volkes in Einheit von Inhalt und Form. Im vorgeschlagenen Pavillon widerspiegelt sich das vorgegebene, anspruchsvolle Kino mit ansteigenden Platzreihen als Ausstellungszone 1. Beide Säle, Rücken an Rücken, bilden gleichsam eine Brücke, die sich auch nach Aussen manifestiert. Ein Geschoss über der ›Brücke‹ nimmt neben der Ausstellung 2 die notwendigen Funktionen auf.
Hohle Quader aus Stahlbeton formen sowohl Aussenansicht als auch Tragkonstruktion in einer scheinbar einfachen Stapelbauweise, die schnell zu montieren und demontieren ist. Innerhalb der Quader ist ausreichend Platz für die Führung von Medien und für notwendige Technik. Das Gebäude ist 20 m hoch, 70 m lang und 35 m breit, die Quader auf der Längsseite messen 7,5 m / 1,25 m / 2,5 m, die Quader an der Breitseite sind 5,00 m lang. In Längsrichtung werden vier Reihen Quader angeordnet, auf den inneren lagern die quer gespannten, 25 m langen Betonbalken des Sekundärtragwerks.
Rundgang
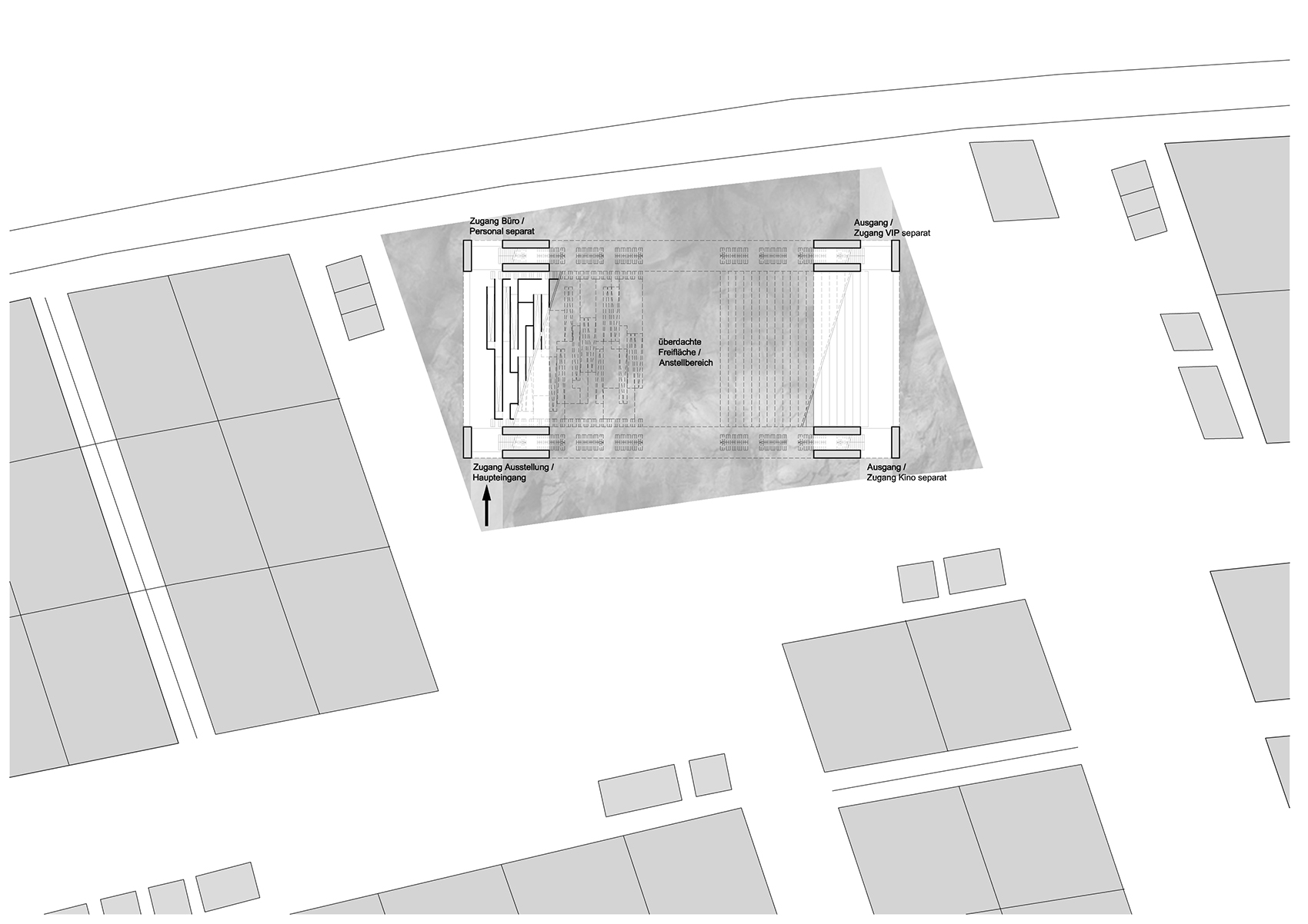
- Zugang, Aussengelände
Das Gebäude verfügt über 4 gleichartige Öffnungen an den äusseren Enden der Längsseiten, von denen eine als Zugang im Normalbetrieb fungiert und einer als Zugang zum Kino, wenn die Ausstellung geschlossen ist. Die beiden weiteren Zugänge empfehlen die Nutzung als VIP- und Personalzugang. Das Aussengelände ist als eine sanft hügelige, unregelmässige Topografie aus Betonsteinen geplant, die ungezwungene Aufenthaltsqualität bietet. Die grosse Fläche unter der ›Brücke‹ schützt Wartende vor Regen und Sonneneinstrahlung.
- Foyer (81 m2, ±0 m)
Das Foyer erstreckt sich auf ebener Erde im gleichen Luftraum wie die Ausstellung 1 und bietet Einstimmung und Überblick.
- Ausstellung 1 (669 m2, +0,5 m bis +10 m)
Einem Alpaufzug gleich, kann über Rampen und Treppen ein zeitgenössisches Abbild der Schweiz erklommen und erfahren werden. Auf den 20 Stufen, 1,25 m tief und 0,5 m hoch, die auch von Rollstühlen und Kinderwagen zu bewältigen sind, wird die föderale Struktur der Eidgenossenschaft erfahrbar, indem sich ein oder zwei Kantone, je nach Exponat auf unterschiedlicher Grundfläche, dem Publikum präsentieren. Von Aussen ist das Schauspiel der Aufsteigenden zu betrachten und vermittelt ein Bild, das an die Bühnenlandschaften von Adolphe Appia (1863–1928) erinnern möchte.
- Ausstellung 2 – Rotunde (494 m2, +15 m)
Auf +10 m angekommen, steigt das Publikum über einen Treppenlauf in die Rotunde (Ein Aufzug steht auch zur Verfügung). Xy Wandtafeln, 3,30 m breit, 4,50 m hoch, zeigen selbst leuchtende Bilder von Schweizer Städten, die fruchtbares Zusammensein von Tradition und Fortschritt in ästhetischer Anordnung vermitteln. Zwischen den Tafeln sind die Zugänge für Restaurant, Shop, VIP-Bereich und Büros zu finden.
- Wartezone für das Grossformatkino (60 m2, +10 m)
- Grossformatkino (750 m2, ±0 m bis +10 m)
Der vorliegende Entwurf geht davon aus, dass im Normalbetrieb das Kino klassisch von hinten betreten wird. Am Ende der Vorstellung wird es vorn, also unten, verlassen. Treppenläufe im Inneren und Ausgänge zu den grossen Treppen garantieren eine schnelle und einfache Entleerung, so dass fast gleichzeitig das nachrückende Publikum ohne Gegenstrom eintreten kann. Das Kino kann von vorn auch von der Ausstellung getrennt betrieben werden. Die grosszügige Reihentiefe und die Überhöhung ermöglichen vielfältige, bequeme Bestuhlung.
Präsentationsblätter des Schweizer Pavillons
































