Ausstellung ›Feuer und Flamme – 200 Jahre Ruhrgebiet‹
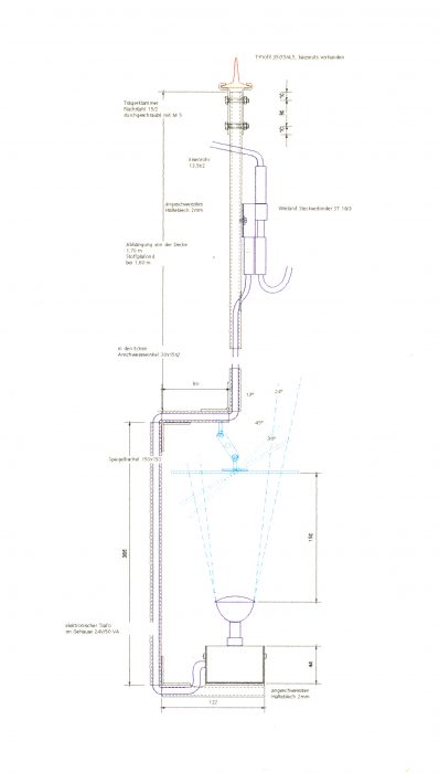
Die Leuchte wurde im Zuge der Vorbereitung der Ausstellung Feuer und Flamme – 200 Jahre Ruhrgebiet 1994 entwickelt. Der Erstausstellung im Gasometer Oberhausen lag ein anspruchsvolles Beleuchtungskonzept zu Grunde mit unterschiedlichen Leuchten und Lampen in den einzelnen Kapiteln. Die Idee hinter der Eierleuchte lässt sich als Zeichen umschreiben, das selbst leuchtet und im Stande ist, bei entsprechender Bestückung, ein darunter stehendes Objekt punktförmig anzustrahlen. In einem „musée sentimental“ als Auftakt der Ausstellung bildeten Vitrinen und Eierleuchten ein ideales Präsentationsumfeld für die erinnerungsschwangeren Objekte. In der ursprünglichen Fassung leuchtete eine Halogenreflektorlampe mit Stiftsockel senkrecht nach unten. Das Nebenlicht erhellte den eiförmigen Körper, dessen unteres Ende zum direkten Lichtaustritt und zum Lampenwechsel kreisrund ausgeschnitten ist. Später kamen Varianten mit einer E27-Fassung dazu, die früher mit Kompaktleuchtstofflampen oder Glühlampen bestückt werden konnten. Heute kommen als weitere Lichtquelle so genannte LED-Retrofit-Leuchtmittel hinzu.
Die ursprüngliche Leuchte wurde in Klarglas, innenmattiert hergestellt. Spätere Varianten sind auch von außen mattiert worden. Die ersten drei Bilder wurden 1994 im Gasometer Oberhausen aufgenommen, die beiden weiteren zeigen drei Eierleuchten bei Dr. Helga Korff, das nächste zeigt den Empfangsraum der Physiotherapiepraxis Britta Beckendorf, die beiden letzten wurden im Museum System 180® aufgenommen.














































































































































































































































