Wilhelm Busch Museum, Hannover
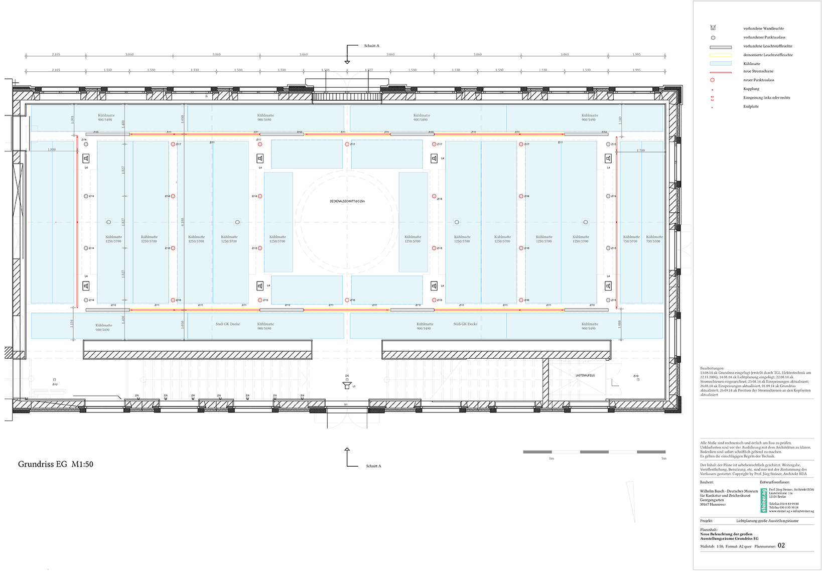
Der 1999/2000 umgebaute Westflügel des Wallmodenpalais besteht aus zwei übereinanderliegenden längsrechteckigen Ausstellungsräumen von jeweils knapp 200 m². Die zum Eröffnungszeitpunkt realisierte Lichtanlage war für Ausstellungszwecke nur bedingt geeignet. Zwei Reihen von Leuchtstofflampen parallel zu den Längswänden, direkt unter der Decke montiert, erzeugten ein diffuses Licht, das im gedimmten Zustand zudem von problematischer Lichtfarbe war. Exponate gezielt einzeln zu beleuchten, war durch eine begrenzte Anzahl von Strahlern, eher im Rauminneren und nicht vor den Wänden, in festen Punktauslässen möglich.
Ziel der Neukonzeption der Beleuchtung im Westflügel des Wilhelm Busch Museums war es, dem Anspruch des Hauses mit seinem ambitionierten Programm zu entsprechen.
Die neue Anlage soll vor allem eine Optimierung und Flexibilisierung von Beleuchtungsszenarien, auch im Hinblick auf konservatorische Belange fördern. Für eine gelegentliche, nichtmuseale Nutzung der Ausstellungsräume zu Veranstaltungszwecken, sollte das diffuse Licht der Leuchtstofflampen zu einem gewissen Teil erhalten bleiben.
Unter Berücksichtigung der Befestigungsmöglichkeiten im Zusammenhang mit einer vorhandenen Kühldecke und einer bestmöglichen Nutzung der vorhandenen Stromzuleitungen und Sicherungselemente entstand eine Lichtplanung, die einen Großteil der Leuchtstofflampen durch 3-Phasen-Stromschienen und einzeln dimmbare, energiesparende LED-Strahler ersetzt. Acht der vorhandenen Leuchtstoffleuchten sind als Notbeleuchtung, wie auch als zusätzliches Licht für Veranstaltungen je Ausstellungsebene unter der Decke verblieben. Die getrennten Stromkreise ermöglichen weiterhin die Dimmbarkeit der Leuchtstofflampen und zusätzlich auch die aller Strahler, die eine gemeinsame Phase der Stromschienen belegen.
Das warmweiße Licht der neuen Optec-LED-Strahler des Herstellers Erco, sorgt gemeinsam mit einem neuen Anstrich der Räume in einem leicht dunkleren, wärmeren Sandsteinfarbton dafür, dass Exponate der Zeichenkunst angemessen präsentiert werden können.
Auftraggeber
Wilhelm-Busch-Gesellschaft Hannover e. V.
Georgengarten
30167 Hannover
Dr. Gisela Vetter-Liebenow, Geschäftsführerin der Wilhelm-Busch-Gesellschaft e.V.
Lichtplanung
Jürg Steiner, Anna Kasprzynski
Elektroinstallation
Helms Elektro, Hannover
Montage
Enercity, Hannover
Fotos
Anna Kasprzynski, Jürg Steiner






























