Stadt Hagen-Hohenlimburg
Im Auftrag der Schloss Hohenlimburg gGmbH hat unser Büro eine ausführliche Bestandsaufnahme der Innenräume des Schlosses unter Berücksichtigung der historischen Entwicklung sowie der aktuellen Bausubstanz erarbeitet.
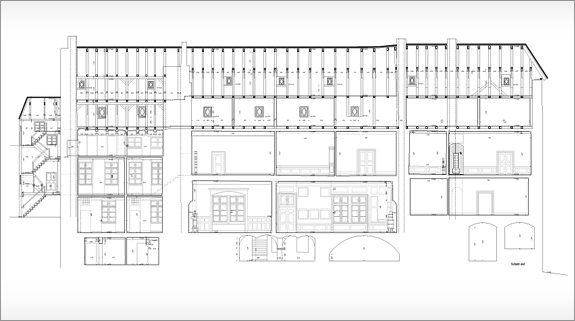
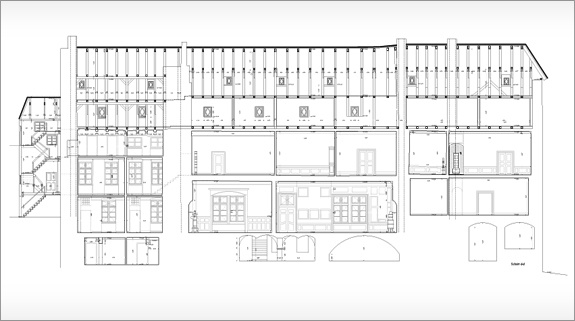
Es wurde ein komplett neues Aufmaß in CAD erstellt, auf dessen Basis Grundrisspläne, Schnitte, Bauzeitenpläne und Wandabwicklungen gezeichnet wurden. Das Ergebnis in Form eines Raumbuches gliedert sich in sieben Kapitel – Keller, Erdgeschoss, Obergeschoss, Mezzaningeschoss, Dachgeschoss, Treppen und Spitzboden – die jeweils die einzelnen Räume beinhalten. Schäden sind aufgeführt und fotografisch dokumentiert und zu treffende Baumaßnahmen werden vorgeschlagen. Restauratorische Gutachten lassen erahnen, wie die Räume ehemals ausgesehen haben könnten. Hierdurch ergibt sich ein umfassendes, aktuelles und baugeschichtliches Bild dieser über die Jahrhunderte gewachsenen Anlage.
Auftraggeber
Schloss Hohenlimburg gGmbH
Aufmaß und Bestandsaufnahme
Anna Kasprzynski, Christoph Schreyer, Andreas Froncala
Restauratorisches Gutachten
Marion Rausch
Fotos
Anna Kasprzynski, Marion Rausch, Christoph Schreyer, Jürg Steiner
Gestaltung und Satz (Raumbuch)
Olaf Mehl, Kirsten Pick
Die Durchführung wurde u.a. ermöglicht durch
Deutsche Stiftung Denkmalschutz, Bonn
Bezirksregierung Arnsberg – Denkmalförderung
Dieses Projekt fand im Besonderen Unterstützung durch
LWL – Fachbereich Praktische Denkmalpflege, Münster
Stadt Hagen – Untere Denkmalbehörde










