Ausstellung im LWL-Landesmuseum für Kunst und Kulturgeschichte Münster, Wettbewerb
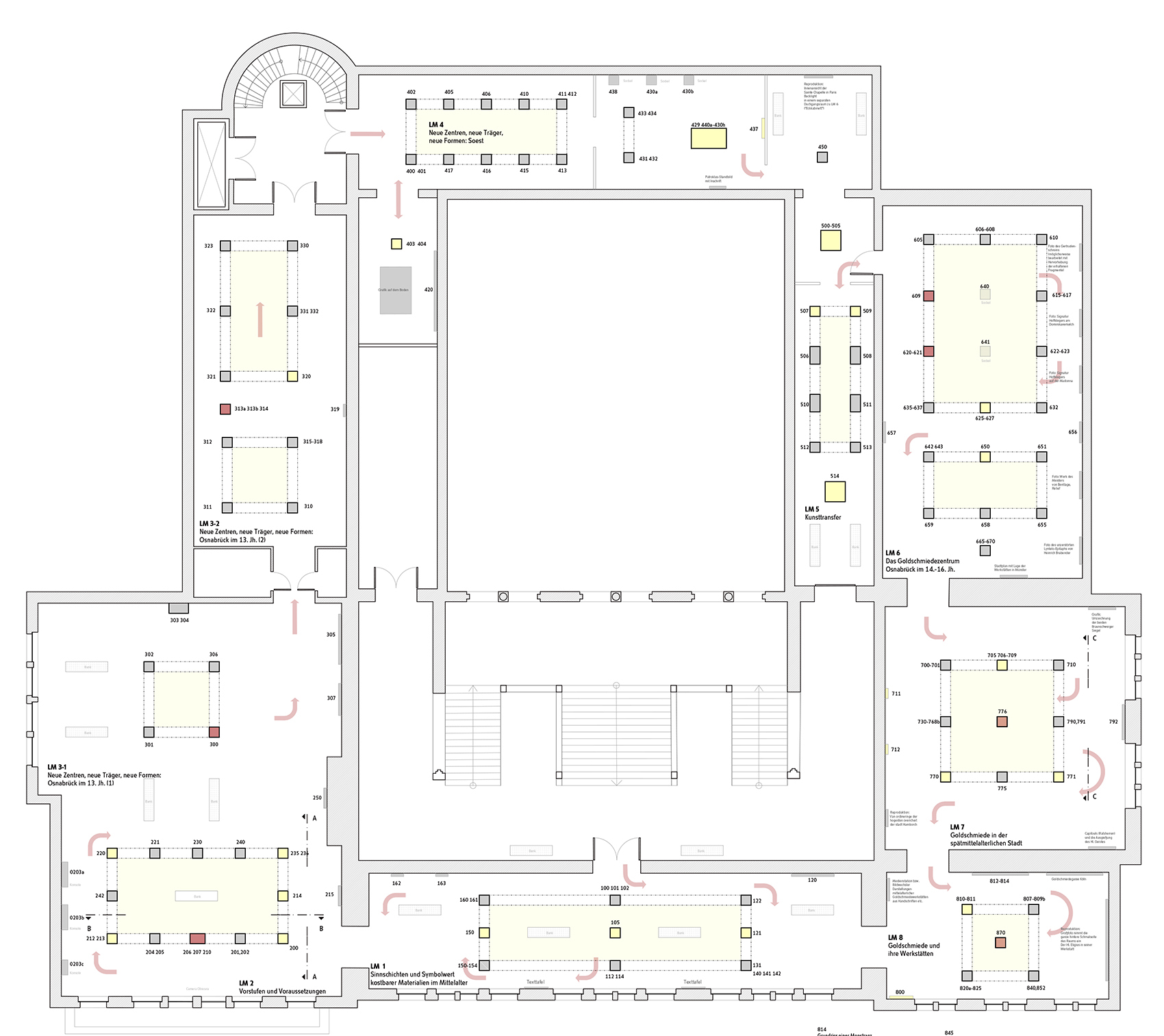
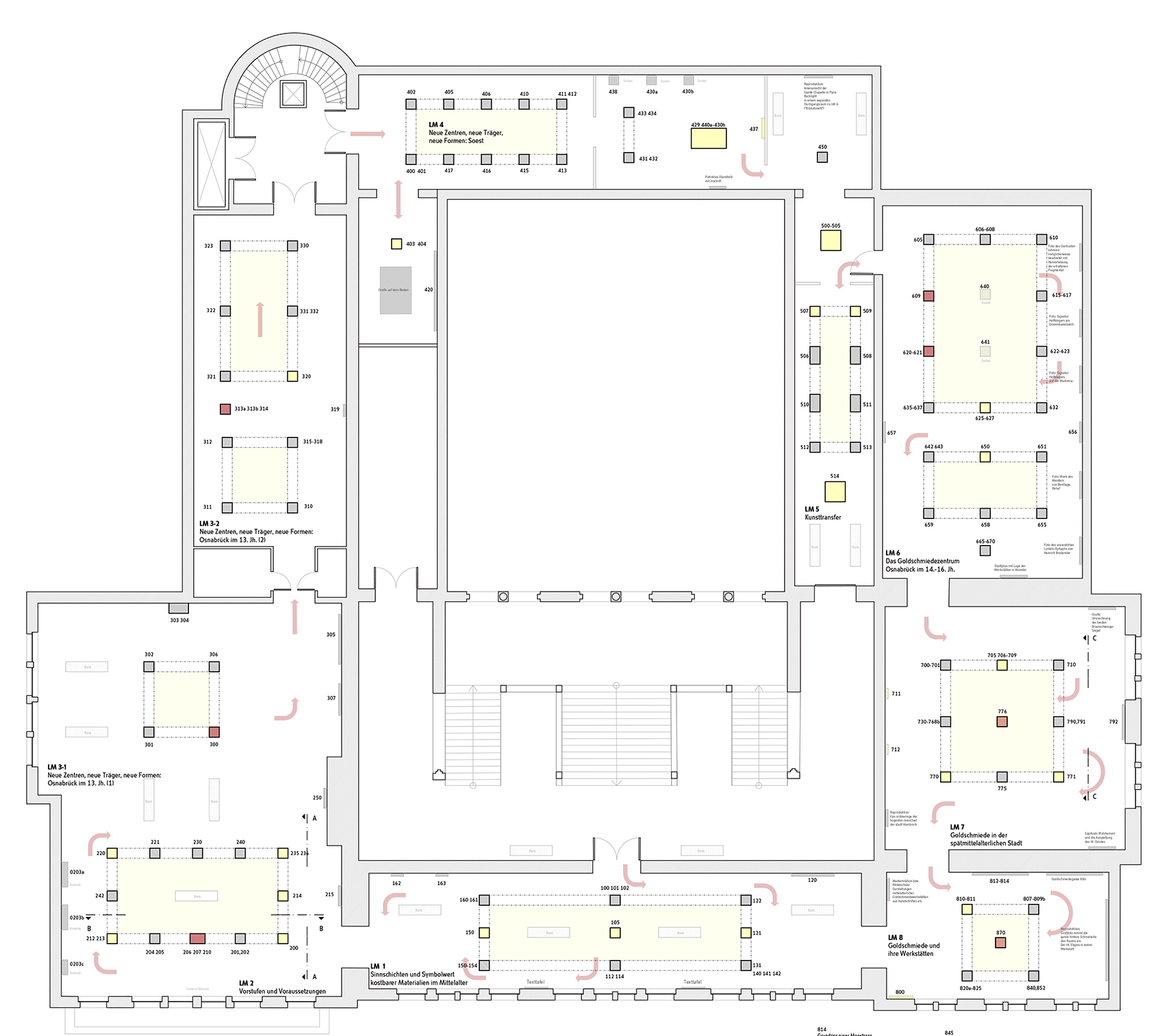
Bei dem eingeladenen Wettbewerb des Bistums Münster standen feinste Skulpturen und Schmuckgegenstände aus kirchlichem und profanem Kontext im Vordergrund. In Anlehnung an die Epoche aus der die Goldschmiedekunst stammt, die in der Ausstellung thematisiert wird, soll das Publikum die Aspekte der Schatzkunst im Zusammenhang mit dem Architekturstil der Gotik wahrnehmen. Die Ausstellungsarchitektur mit ihren sitzbogigen Überbauten als prägnantes, erinnerungsmächtiges Element stellt eine harmonische Einheit in Geometrie, Proportion, Materialität und Farbe dar, die als angemessene und elegante Kulisse für die Präsentation einer vielfältigen Zusammenstellung geeignet ist.
Präsentationsplakate „Goldene Pracht – Mittelalterliche Schatzkunst in Westfalen“
Auftraggeber
Bistum Münster, vertreten durch das Bischöfliche Generalvikariat
Entwurf
Jürg Steiner, Anna Kasprzynski
Visualisierung
Anna Kasprzynski
Ausstellungsgrafik und Plangestaltung
Olaf Mehl


























