Schleswig-Holsteinisches Landesmuseum Gottorf, Schleswig
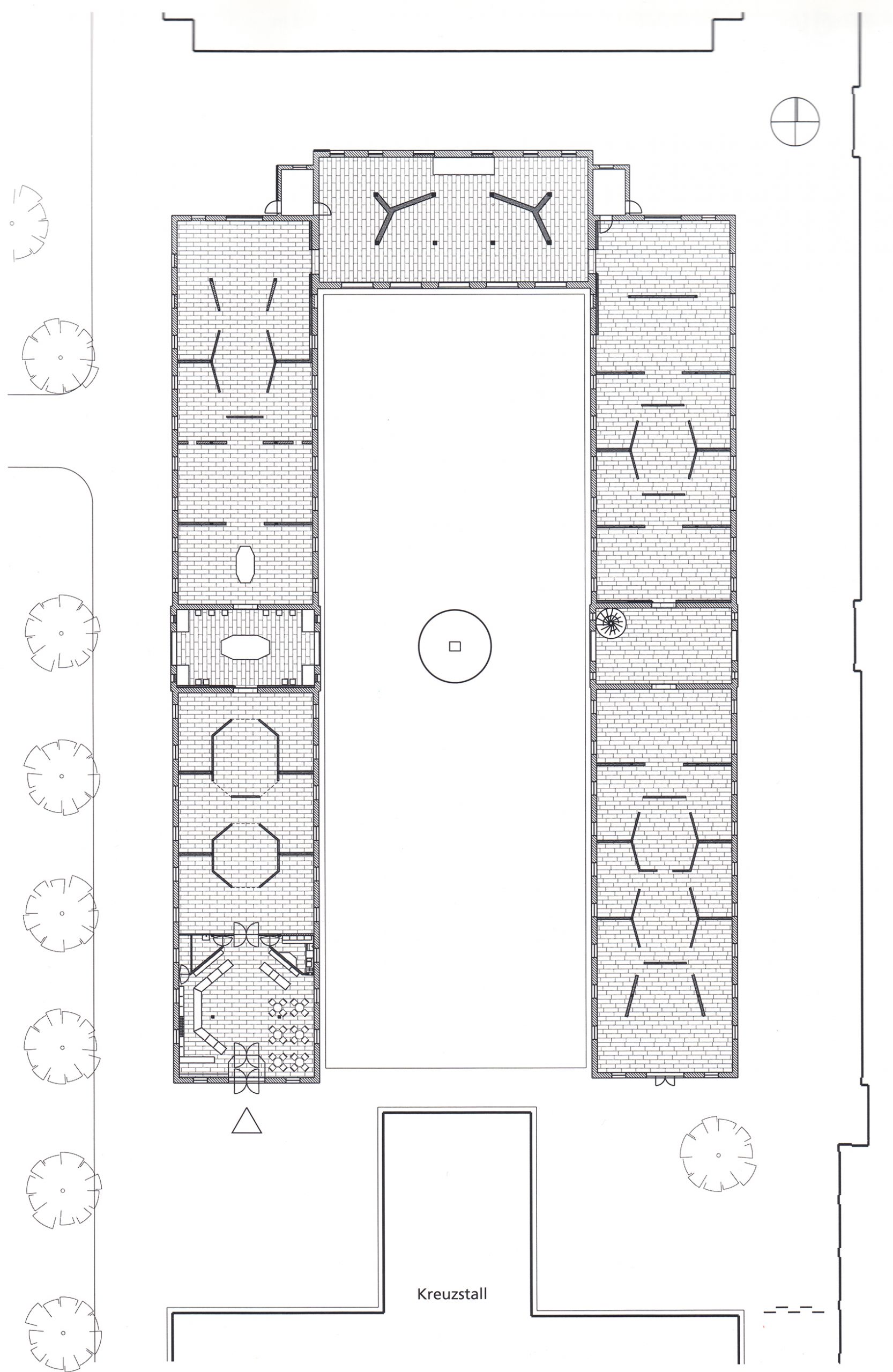
Für die Sammlung Rolf Horn stellte das Schleswig-Holsteinische Landesmuseum unter der Leitung von Heinz Spielmann ehemalige Pferdestallungen zur Verfügung, die zuvor eine Sammlung volkskundlicher Objekte beherbergt hatten. Es waren langgezogene, mit vielen Stützen durchsetzte einstöckige Backsteinhäuser mit ausgebautem Spitzdach, die auf der Schlossinsel in Gottorf nach der Einnahme durch die Preussen gebaut worden waren.Zur adäquaten Präsentation der Sammlung Rolf Horn plante und realisierte das Büro Steiner eine Enfilade von Räumen und Kabinetten. Die vielen Stützen wurden in neu gezogene Wände integriert. Der schwarze, rauhe Schieferboden bildet einen starken Kontrast zu den Decken und Wänden. Letztere sind in teilweise kräftigen Leimfarben gestrichen – je nach Art des Ausstellungsguts. Um den Charakter der Pferdestallarchitektur zu nutzen, werden die typischen kleinen hochangebrachten Fenster für die Mischlichtbeleuchtung herangezogen. Auftakt bildet ein Foyer mit gastronomischer Einrichtung in schwarzer Ausführung. Mit der Landesbauverwaltung stand ein kompetenter und engagierter Partner zur Verfügung.
Die Podeste für Skulpturen und enthnografische Objekte haben eine gewachste Oberfläche aus unbearbeiten Stahlplatten, die gut sichtbar auf ein Untergestell geschraubt sind. Die künstliche Beleuchung kann in Deckenrinnen variabel befestigt werden, ohne störend das Lichtraumprofil zu beeinträchtigen. Stromschienen in den Rinnen erlauben eine Montage von verschiedenen Strahlern: So wird auch in puncto Lichtregie den Kunstwerken der Sammlung höchste Reverenz erweisen.
Der Stifter, ein beeindruckender Mann, von dem alle viel lernen konnten, starb leider kurz vor der Eröffnung. Seine engagierte Witwe Bettina Horn und Landesmuseumsdirektor Heinz Spielmann vollendeten mit dem Architekten und Designer das Werk.
Fotos
Wulf Brackrock, Hamburg
Architektur, Ausstellungsgestaltung, Kommunikationsdesign, Lichtgestaltung
Jürg Steiner mit Hasso von Elm




















