Gestaltung der Ausstellung „MYTHOS“ im Lippischen Landesmuseum Detmold (Wettbewerb)
Die Gestaltung der Ausstellung folgt einem klaren Prinzip: Thema, Objekte und Raum bilden eine Einheit. Die beiden architektonisch sehr unterschiedlichen Raumfolgen – Zehntscheune und Museumsgraben – schaffen den Rahmen für eine Inszenierung, die Historie erlebbar macht.
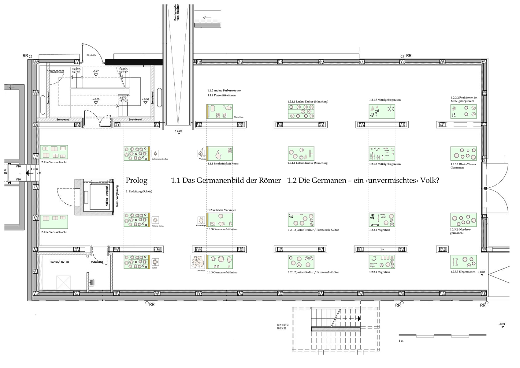
Der erste Teil, „Tacitus, Arminius und die Germanen“, nutzt die alte Scheune als Bühne. Inspiriert vom römischen Triumphbogen entsteht ein eindrucksvolles Szenenbild, das die historischen Objekte würdevoll präsentiert. Ein Rundgang in Enfilade führt die Besucher:innen durch thematische Stationen, unterstützt von großformatigen Bildern in einheitlicher Sepia-Ästhetik, die eine zeitlose Stimmung erzeugt.
Der zweite Teil, „Ein Mythos wird gemacht“, im Museumsgraben setzt den Wald als zentrales Symbol in Szene: gezielte Lichtführung, offene Fenster und die Präsenz großer Bäume schaffen eine dichte Atmosphäre, die die symbolische Bedeutung der Natur für den Arminius-Mythos verstärkt.
Dokumentation zu IMPERIUM-KONFLIKT-MYTHOS. 2000 Jahre Varusschlacht
Team
Prof. Jürg Steiner und Claus Klimek
































