Der Naumburger Meister – Visualisierung der Marienkirche

Bildhauer und Architekt im Europa der Kathedralen – Landesausstellung Sachsen-Anhalt

Im Zuge der Vorbereitungen für die Landesausstellung ›Der Naumburger Meister – Künstler und Architekt im Europa der Kathedralen‹, die 2011 an fünf Orten in Naumburg stattfinden soll, nahmen wir uns vor, den thematischen Schwerpunkt des Einflusses der Reimser Kathedrale auf den Meister und die Gotik des 13. Jahrhunderts im Allgemeinen für die Ausstellungsleitung zu visualisieren.

Veröffentlicht am
Kategorisiert als Ausstellung

Der Naumburger Meister – Mustervitrine

Bildhauer und Architekt im Europa der Kathedralen – Landesausstellung Sachsen-Anhalt 2011

Für die Landesausstellung ›Der Naumburger Meister – Künstler und Architekt im Europa der Kathedralen‹, die 2011 an mehreren Orten in Naumburg stattfand, war uns daran gelegen ein Vitrinensystem zu entwickeln, das in edler Schlichtheit aus einem Sockel und einem Glassturz besteht.

Veröffentlicht am
Kategorisiert als Mobiliar

Entwurf für ein solar definiertes Townhouse vor einer Brandmauer

Stierstrasse, Berlin-Friedenau

Mit vergleichsweise geringem Aufwand könnte vor der 30 m lange Brandwand ein Townhouse entstehen. 

Veröffentlicht am
Kategorisiert als Architektur

Haus jüdischer Kultur – Kalenderinstallation

Alte Synagoge Essen

Für die Dauerausstellung im ›Haus jüdischer Kultur‹ in der Alten Synagoge Essen stellten wir uns zur Aufgabe, eine interaktive kinetische Station zu entwickeln, um die Synchronisation des jüdischen mit dem gregorianischen Kalender erfahrbar zu machen. 

Veröffentlicht am
Kategorisiert als Maschinen

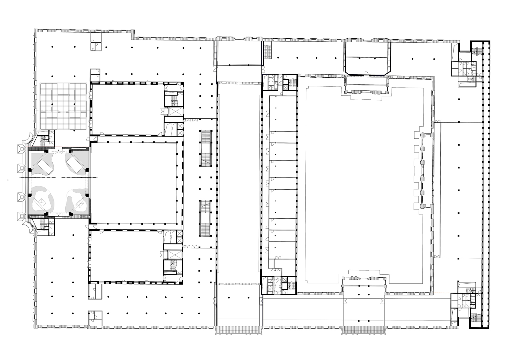
Der Naumburger Meister – Bemusterung der Licht- und Leuchtengestaltung in der Domklausur

Bildhauer und Architekt im Europa der Kathedralen – Landesausstellung Sachsen-Anhalt 2011

Im Hinblick auf die Landesausstellung über den Naumburger Meister 2011 werden zwei Stockwerke der Westklausur, die zuletzt als Archiv und Büros genutzt wurden, temporär zu Ausstellungsräumen, langfristig zu einer Bibliothek umgenutzt. Das Beleuchtungskonzept nimmt die Doppelfunktion zum Anlass eine Leuchte für gerichtetes und diffuses Licht zu entwickeln, je nach Ausrichtung und Wahl des Leuchtmittels.

Veröffentlicht am
Kategorisiert als Licht

System 180 – Entwicklung und Vermarktung eines Stahlrohrbausystems aus Berlin

Vortrag im Rotary-Club Berlin

1981 entstand das erste Regal aus Rohren mit abgeplatteten Enden. Die Phase der Erprobung und des Sammelns von Erfahrung in den 1980er Jahren – vor allem durch Konstruktionen für Ausstellungen – schloss 1990 mit der Einreichung des Patents ab. 

Veröffentlicht am
Kategorisiert als System 180

Haus jüdischer Kultur

Transformation der Alten Synagoge Essen

Ein neuer Typus des historischen Museums entstand aus der Gedenkstätte Alte Synagoge Essen. Sie besteht aus fünf Themen meist in Räumen die bisher museal nicht genutzt wurden: Quellen jüdischer Traditionen, Geschichte des Hauses, Jüdische Feste, Jüdischer Way of Life und Geschichte der Essener Gemeinde.

Von der Wechselausstellung zur Dauernutzung

Karriere eines modularen Vitrinensystems

Für die Inaugurationsausstellung ›Feuer und Flamme – 200 Jahr Ruhrgebiet‹ im Gasometer Oberhausen 1994 entwickelte das Büro Steiner ein modulares Vitrinensystem.

Veröffentlicht am
Kategorisiert als Mobiliar

Gestaltung der Ausstellungsbereiche im Humboldt-Forum

Berliner Schloss (Wettbewerb)

 

Für die einzelnen Regionen und deren jeweilige Objektwelt wird je eine symbolische Raumgestalt vorgeschlagen. Dabei geht es um stilisierte Formen aus einer Glaskonstruktion – entweder durchsichtig, oder transluzent oder als undurchsichtiger Bild- und Textträger. Ein modulares System erlaubt Anpassungen und Modifi kationen. Die Raumgebilde sind eigentliche Präsentationsmöbel sowohl als Träger als auch als Gehäuse.

Ethnologischen Museums
Den regionalen Zugang vermitteln die symbolischen Bauwerke. Unaufdringlich aber verdeutlichen sie dem Publikum Ort und Zeit der jeweiligen Objektwelt. Das Glasmodul hilft dabei mit Stilisierung zu einem fragmentierten Zugang, der in den Köpfen des Publikums ein Ganzes formt. 

Während die regionalen Bildwelten die symbolischen Gehäuse formen, bilden Schaumagazine gleichsam Inseln, in doppelter Erscheinungsform: Sie sind im Inneren Schatzkammern, umschlossen von transparenten Depotschränken. Dank der tragenden Ausführung der Vitrinen und Depotschränke kann ein Geschoss darüber entstehen, das beim Hochblicken erkannt wird. Jeweils zwei Treppenanlagen und eine Hebebühne ermöglichen Arbeit und vertiefenden Besuch.

Museums für Asiatische Kunst
Grundgedanke der Ausstellung des »Museums für Asiatische Kunst« ist es die verschiedenen Sammlungsteile der Kunstsammlung miteinander zu integrieren. Die Ausstellungsgestaltung setzt dabei auf ein homogenes Erscheinungsbild von hochflexiblen, schlanken Standvitrinen, welches sich unterschiedlichsten Gegebenheiten und Sammlungsschwerpunkten anpassen kann und deren Konstruktion die asiatische Architektursprache aufgreift. Durch die Unität des Vitrinensystems werden die Kunstwerke in eleganter, würdevoller Weise präsentiert. Gleichwohl können mit den Modulen auch aufgelockerte Räume gebildet werden. 

Durch die Anordnung der Vitrinen entstehen Räume, Wege und Gärten fernöstlicher Welten, die der Besucher bei einem Besuch des Ausstellungsbereiches durchschreitet.

Präsentationsblätter

Veröffentlicht am
Kategorisiert als Architektur

Vertikalpanoramen sakraler Räume

Fotografische Werke

Das von Jürg Steiner 2006 entwickelte Vertikalpanorama findet gerade bei sakralen Räumen sein umfassendstes Prüffeld. 

Veröffentlicht am
Kategorisiert als Werke