Alt Stralau, Berlin-Friedrichshain
Die Wasserstadt GmbH, eine treuhänderische Gesellschaft der Stadt Berlin, entwickelte ehemals industriell genutzte Wasserlagen in Berlin für Wohnen und Gewerbe.
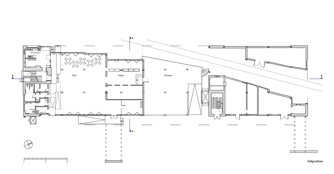
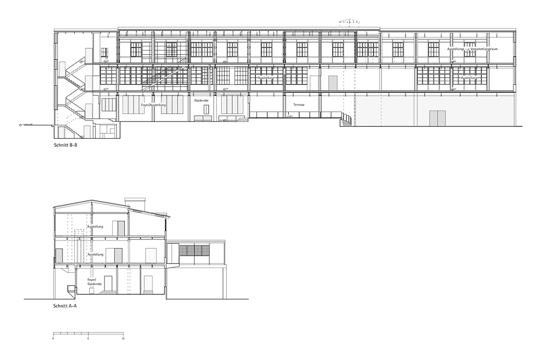
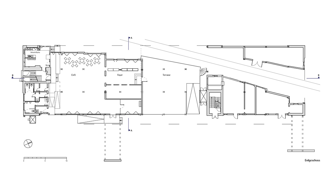
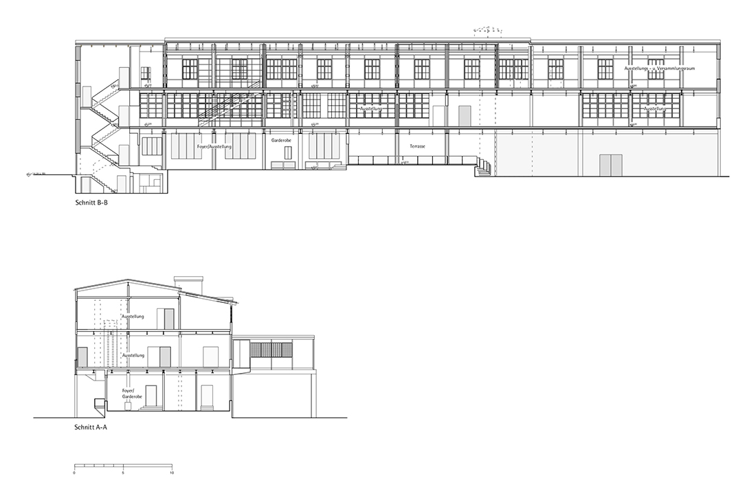
Auf der Halbinsel Stralau verblieb auf dem Gelände einer ehemaligen Glasfabrik neben dem Flaschenturm das denkmalgeschützte Werkstattgebäude. Das Büro Steiner adaptierte es behutsam mit der für Ausstellungen notwendigen Technik. Im Erdgeschoss verbinden Rampen aus Stahlblech die höher gelegenen Toiletten, den Ausstellungszugang, die Küche und ein Lager mit der Hauptebene des Foyers. Leuchten und Leitungen hängen fachgerecht unter der Decke und können beliebig nachgerüstet werden.
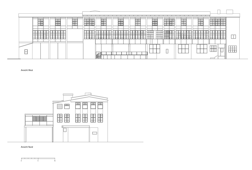
Auf der Ostseite ersetzten wir im Obergeschoss einen baufälligen Balkon durch eine Neukonstruktion. Das ganze Haus diente im Jahr 2000 als Versammlungsstätte und beherbergte die Ausstellung Wasser in der Stadt. Das Projekt wurde für die Auszeichnung „da! Architektur aus Berlin“ der Berliner Architektenkammer ausgewählt (letztes Bild).
Dank an Gerhard Buchholz für das Zusammenbringen mit der Bauherrschaft.
Eröffnung Hochparterre: Oktober 1999,
Eröffnung der Obergeschosse: Mai 2000


































