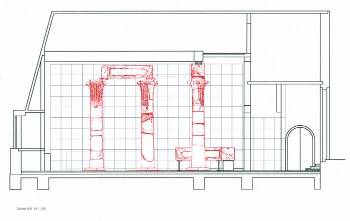
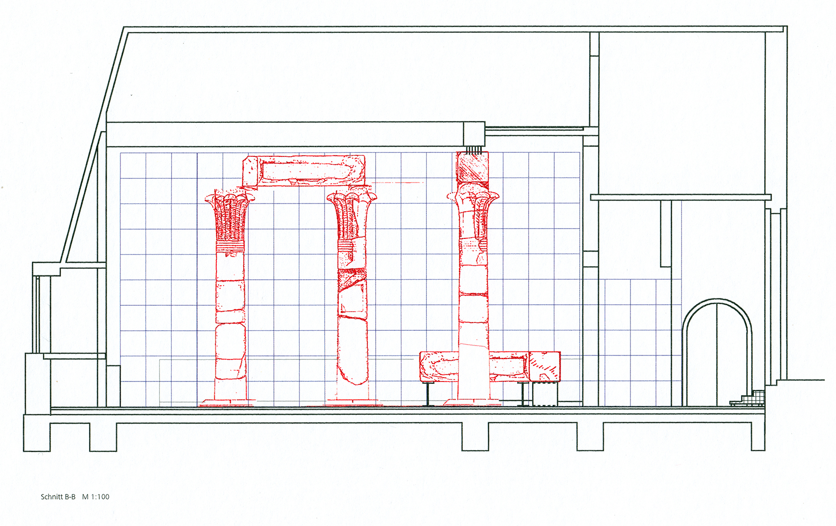
Anbau am Ägyptischen Museum Berlin-Charlottenburg
Im 19. Jahrhundert gelangten ägyptische Architekturfragmente des Sahu-Rê-Tempels in großer Zahl nach Berlin, um dereinst im Neuen Museum aufgestellt zu werden. Dazu ist es nicht gekommen; die Teile lagerten im Freien und wurden im Krieg durch Brandeinwirkung stark beschädigt. In den 1980er Jahren begannen Restauratoren damit, die Einzelteile zusammenzufügen.
Ralf Schüler baute ein fensterloses Gebäude an die Museumsräume in Berlin-Charlottenburg. Doch über sein Innenraumkonzept entzweiten sich Bauherrin und Architekt. So betraute die Senatsbauverwaltung und der Direktor des Ägyptischen Museums, Dietrich Wildung, das Büro Steiner mit der Innenausstattung: Geschlämmte Wände, dunkler Deckenraum und Kunststeinboden erzeugten einen spannenden Dialog des Fragmentarischen. Die ersten beiden Bilder sind vom Arbeitsmodell. Die letzten beiden zeigen den Raum am 26. Juli 2025 als Kinosaal der Sammlung Scharf-Gerstenberg, die hier nach dem Auszug des Ägyptischen Museums ihr Domizil gefunden hat.




























