Knobelsdorff-Flügel, Schloss Charlottenburg, Berlin
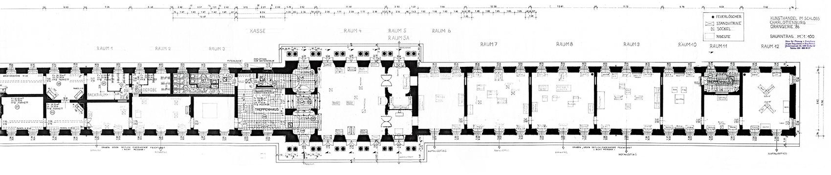
Aus Termingründen musste in diesem Jahr die fünfte »Orangerie« einen anderen Ort in der Anlage des Schlosses Charlottenburg bespielen. Der Knobelsdorff-Flügel war baulich gerade für die Einrichtung der »Galerie der Romantik« fertig gestellt worden
Nun standen zum ersten Mal einzelne Räume mit breiten Wänden zur Verfügung, auf die Stellwände des Verbands der Berliner Kunst- und Antiquitätenhändler e.V. konnte verzichtet werden. Auch hier galt es, die Ausstellung nach den vereinbarten Prinzipien zu gestalten: axiale Sichtbezüge, Nutzung räumlicher Gegebenheiten wie Fensternischen für Vitrinen und eine Konche für einen Ofen sowie optimale Nutzung des Tageslichts. Weiterhin gab es keine Stände für einzelne Händler, vielmehr erlaubte die Anordnung der verkäuflichen Werke einen Rundgang durch die Kunstgeschichte.
Grundriss





