Ehemaliges Kasino der AEG in Berlin-Oberschöneweide
Im Auftrag der Wirtschaftsförderung des Bezirksamtes Treptow-Köpenick von Berlin konnte das Team um Frank Schaal, Jürg Steiner, Gerhard Buchholz und Oliver Schmidt mit Unterstützung des Industriesalon Oberschöneweide (Leitung Susanne Reumschüssel) die Machbarkeitsstudie für das ehemalige Kasino der AEG in der Wilhelminenhofstraße erarbeiten.
Das zukünftige Industriemuseum kann die heutige Museumslandschaft Berlins mit neun Alleinstellungsmerkmalen erweitern und abrunden:
- An einem authentischen und bedeutenden Ort der Großindustrie wird die ›Industriestadt Berlin‹ erlebbar.
- Am Beispiel des Kabelwerks Oberspree (KWO) wird Berliner Wirtschaftsgeschichte im unmittelbaren Zusammenhang deutlich – mit ihren Erfolgen, Brüchen und aktuellen Entwicklungen
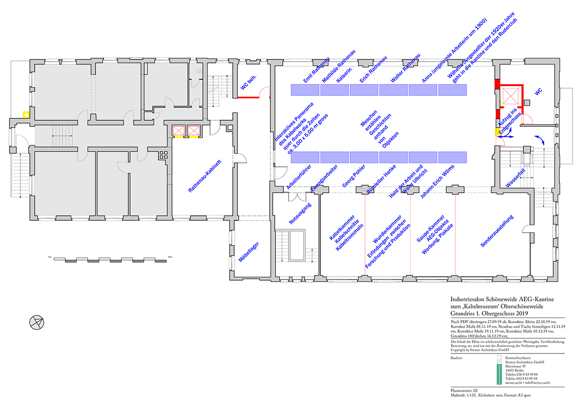
- Das denkmalgeschützte Gebäude ›AEG Kasino‹ steht für die Anfänge betrieblicher Sozialpolitik, wie sie für die Großindustrie typisch war – die Funktions-Aufteilung der Speisesäle und Nebenräume macht damalige Hierarchien deutlich.
- Am Beispiel der früheren Nutzungen des Gebäudes werden die Anstrengungen der AEG erkennbar, erstmals die ›Frauenfragen‹ im Betrieb zu berücksichtigen. In diesem Gebäude war die erste ›Frauenbeauftragte‹ tätig.
- Die jüdischen Industriepioniere werden durch die Familie Rathenau, für die ein ›Period Room‹ vorgesehen ist, prototypisch repräsentiert. Die Unternehmerfamilie Rathenau wird damit in Berlin zum ersten Mal mit einem eigenen Raum gewürdigt.
- Wo kann die Geschichte der Berliner Industrie in der DDR besser gezeigt werden als auf dem Gelände der KWO?
- Das denkmalgeschützte Industrie-Ensemble vom KWO und dem benachbarten Kraftwerk macht die Dimensionen der frühen Großindustrie unmittelbar erfahrbar.
- Industriekultur ist als Überthema und von Anfang an eine Leitidee des Projekts.
- Das Projekt kann die Symbiose zwischen privatem Eigentümer der Liegenschaft und der öffentlichen Hand zur Baudurchführung und für den Betrieb exemplarisch aufzeigen.Auf der Website des Bezirksamts Treptow-Köpenick von Berlin, Wirtschaftsförderung, sind die zusammengefassten vier Bände des Gutachtens unter diesem Link zu öffnen. Die Einzelbände sind hier abrufbar:
Band 1: Rahmenbedingungen, Standortanalyse, Marktanalyse, Marketing
Band 2: Organisation, Trägerschaft, Rechtsform, Finanzierung, Businessplan, Kostenschätzung, Zeitplan
Band 3: Architektur, Raumbuch, Szenografie
Band 4: Digitale Technologien, Visitor Journey, Exponate und Themen, Erste mögliche Ausstellung






















